logo
Вдохновение природы

Другие фотографии в проекте Вдохновение природы

Вопросы к фото 0

Задайте вопрос

Вам ответят эксперты. Пришлем уведомление, когда вам ответят

Санкт-Петербург

Maria Vasilenko

Maria Vasilenko

Архитекторы

Смотреть профиль

1

отзыв

5

Рейтинг

Вдохновение природы

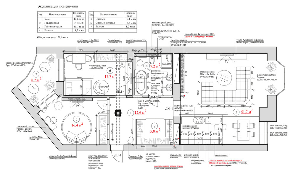
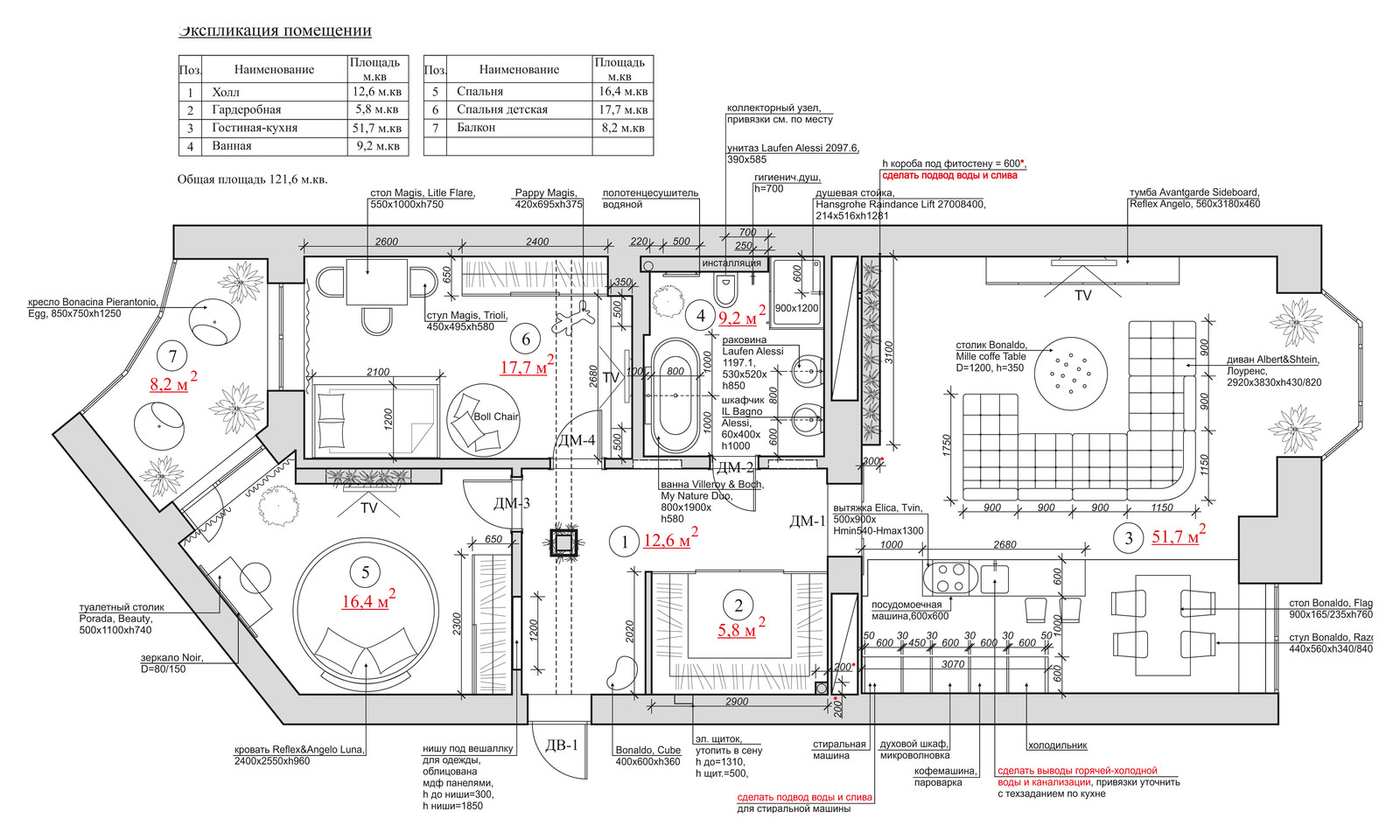
На общей площади 121,6 кв. м до реорга- . низации квартиры располагались холл, . совмещенные зоны гостиной и кухни- . столовой, спальня, детская, балкон и два . санузла. В ходе проекта было решено оста- . вить только один — большой — санузел, . а на месте меньшего сделать гардеробную. . Остальные зоны Мария Василенко обно- . вила без радикальных изменений, обыграв . пространство с помощью разнообразия . цвета и фактур. Основной просьбой . заказчиков — семейной пары — было . привнесение в интерьер каждой комнаты . дерева и живых растений. С опорой на это . был создан концепт, в котором главную . роль отвели различным породам дерева . и экзотическим растениям. Из-за того что . хозяева живут в другом городе, работать . пришлось дистанционно: организаци- . онными вопросами и ходом реализации . проекта занимался в основном дизайнер. . «Клиенты доверяли мне, что, безуслов- . но, очень приятно, — поделилась Мария . Василенко. — В итоге, когда я позвонила . хозяйке, чтобы спросить, что им понра- . вилось в проекте больше всего, мне . ответили: все!» . К базовому экостилю добавились . эклектичные элементы и даже афри- . канские вкрапления: животные принты . постельного белья в спальне и медный . декор, отсылающий к ритуальным укра- . шениям африканских племен. Древесная . фактура обыгрывается многочисленны- . ми поверхностями: полосатым полом, . стеной из красного дерева, деревянным . потолком, а также плиткой под дерево . в санузле. В поддержку контрастно- . му «холодному» концепту выступили . металлические и зеркальные детали: . светильники Mirror Ball от Tom Dixon . в обеденной зоне, зеркальное кашпо . в зоне эркера, зеркальная плитка над . ванной и харизматичный элемент в виде . зеркальной консоли с круглым зерка- . лом в спальне. «Обратите внимание: . зеркало нарезано фаской для гармонии . и переклички с полосатым полом, — . добавляет дизайнер. — Кстати, разные . породы дерева на полу дали нам возмож- . ность разнообразить многочисленные . древесные поверхности за счет цвета . и динамичного рисунка». Визуальное . зонирование обыграли при помощи . таких техник, как использование разных . материалов и сочетание контрастных . цветов, смешение светлых и темных . оттенков. . Основной сложностью проекта стало . расположение кухни и невозможность ее . перепланировки: изолированная квар- . тира с автономной газовой системой, . отоплением и водопроводом не позволяла . кардинально изменить зону кухни и сто- . ловой. Однако защитная рельефная стена . из массива дуба спрятала все необходимые . коммуникации, получив не только эстети- . ческую, но и функциональную нагрузку.

Вопросы к фото 0