
Дизайнеры интерьера
4.56
·
9 отзывов
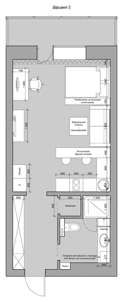
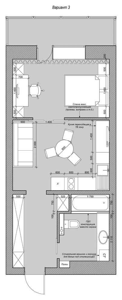
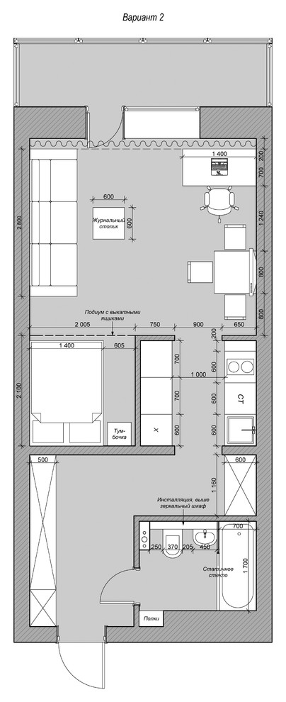
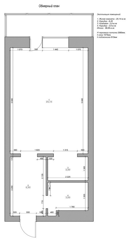
Варианты планировочного решения квартиры-студии
Разработка вариантов планировочного решения квартиры-студии площадью 38 м.кв. для молодого человека с возможностью, в будущем, жить вдвоем. Как вы думаете, какой из вариантов выбрал заказчик?
Другие фотографии в проекте
Вопросы к фото 0
Задайте вопрос
Вам ответят эксперты. Пришлем уведомление, когда вам ответят




