
Проектирование и строительство
5
·
10 отзывов
Усадьба
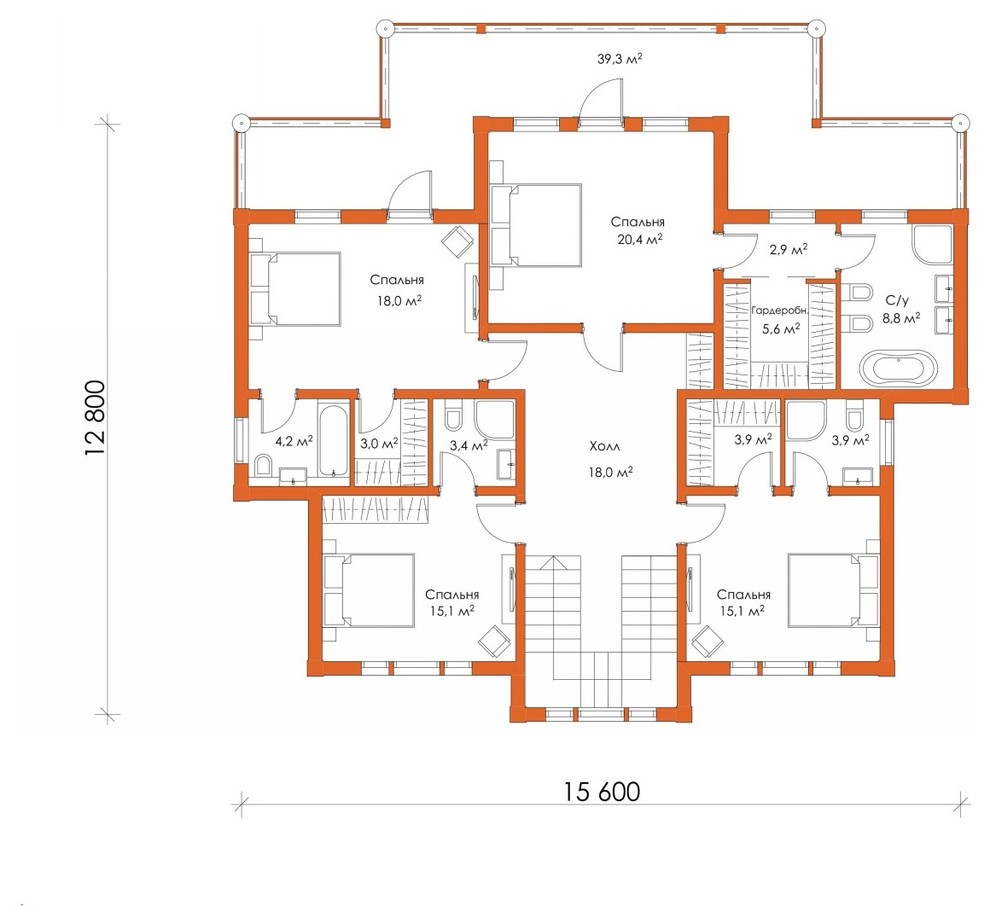
Площадь дома: 305 м² . Площадь террас: 110 м² . Кол-во этажей: 2 . Кол-во спален: 6 . Кол-во санузлов: 6 . Наличие гаража: ✔ . . Статный и фундаментальный во всех отношениях проект дома «Усадьба» сразу привлекает внимание своей величавостью. Прекрасное планировочное решение большого пространства в ярко выраженной полусимметрии архитектурной композиции обеспечивают «Усадьбе» статус рядового поместья на все времена. Полукруглый изгиб террасы с балюстрадой в канонах классической архитектуры является ключевым акцентом проекта и логически завершает образ. За стенами такого дома, выполненных по технологии Naturi, комфорт и уют домашнего очага непременно дополняется вашим здоровьем и долголетием. . . Архитектор - Виталий Харитошин
Другие фотографии в проекте
Вопросы к фото 0
Задайте вопрос
Вам ответят эксперты. Пришлем уведомление, когда вам ответят



