
Архитекторы
5
·
10 отзывов
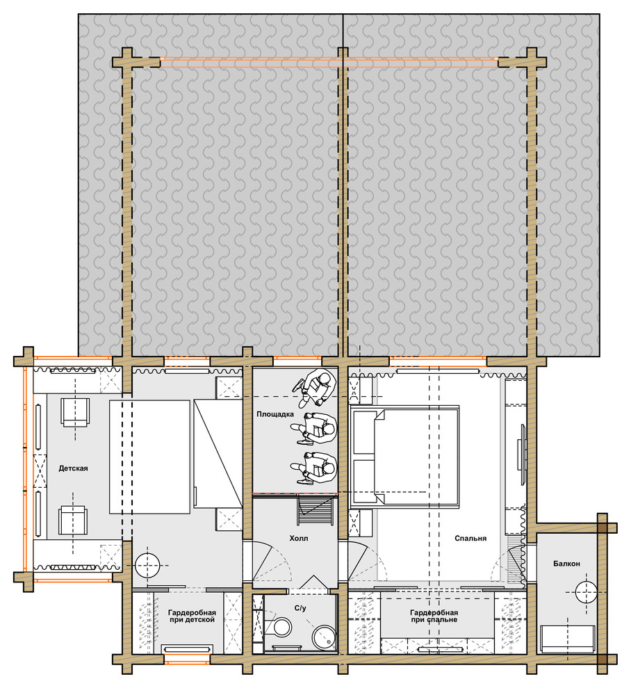
Urban country house_120м2
План 2-го этажа загородного дома из бруса. . Дизайнеры: Тимофеенко Ксения . Пужак Алина
Другие фотографии в проекте
Вопросы к фото 0
Задайте вопрос
Вам ответят эксперты. Пришлем уведомление, когда вам ответят




