
Дизайнеры интерьера
5
·
10 отзывов
Уютный интерьер маленькой квартиры
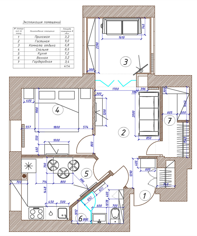
Знакомьтесь: маленькая квартира площадью всего 41 кв.м. в старом жилом фонде. В этой квартире проживает семейная пара. Муж и жена - пенсионеры, но продолжают активную жизнь: работают, путешествуют, очень любят совершать поездки на Байкал. Они попросили нас разработать дизайн интерьера квартиры, в которой можно было бы с комфортом коротать тихие семейные вечера. Эти люди никуда не спешат, не устраивают шумные вечеринки, хотя не прочь пригласить друзей на ужин. . Работая над дизайн-проектом этой «трёшки» в стиле «современная классика», нам потребовалось применить целый арсенал методов визуального расширения пространства. Среди них и наличие большого зеркала в прихожей, и дверь-невидимка в гардеробную комнату, разместившаяся за диваном в гостиной, и стеклянная душевая кабина в ванной, и мн. другое. В итоге нам удалось спроектировать и воплотить в жизнь интерьер полноценной трёхкомнатной квартиры, в которой нашлось место и для комнаты отдыха, и даже для гардеробной на 3,4 кв.м. . Подробное описание проекта читайте по этой ссылке: . http://dizayn-intererov.ru/studiya-dizayna-interera-portfolio/dizayn-malenkoy-kvartiry-sovremennaya-klassika/
Другие фотографии в проекте
Вопросы к фото 0
Задайте вопрос
Вам ответят эксперты. Пришлем уведомление, когда вам ответят




