
Дизайнеры интерьера
5
·
10 отзывов
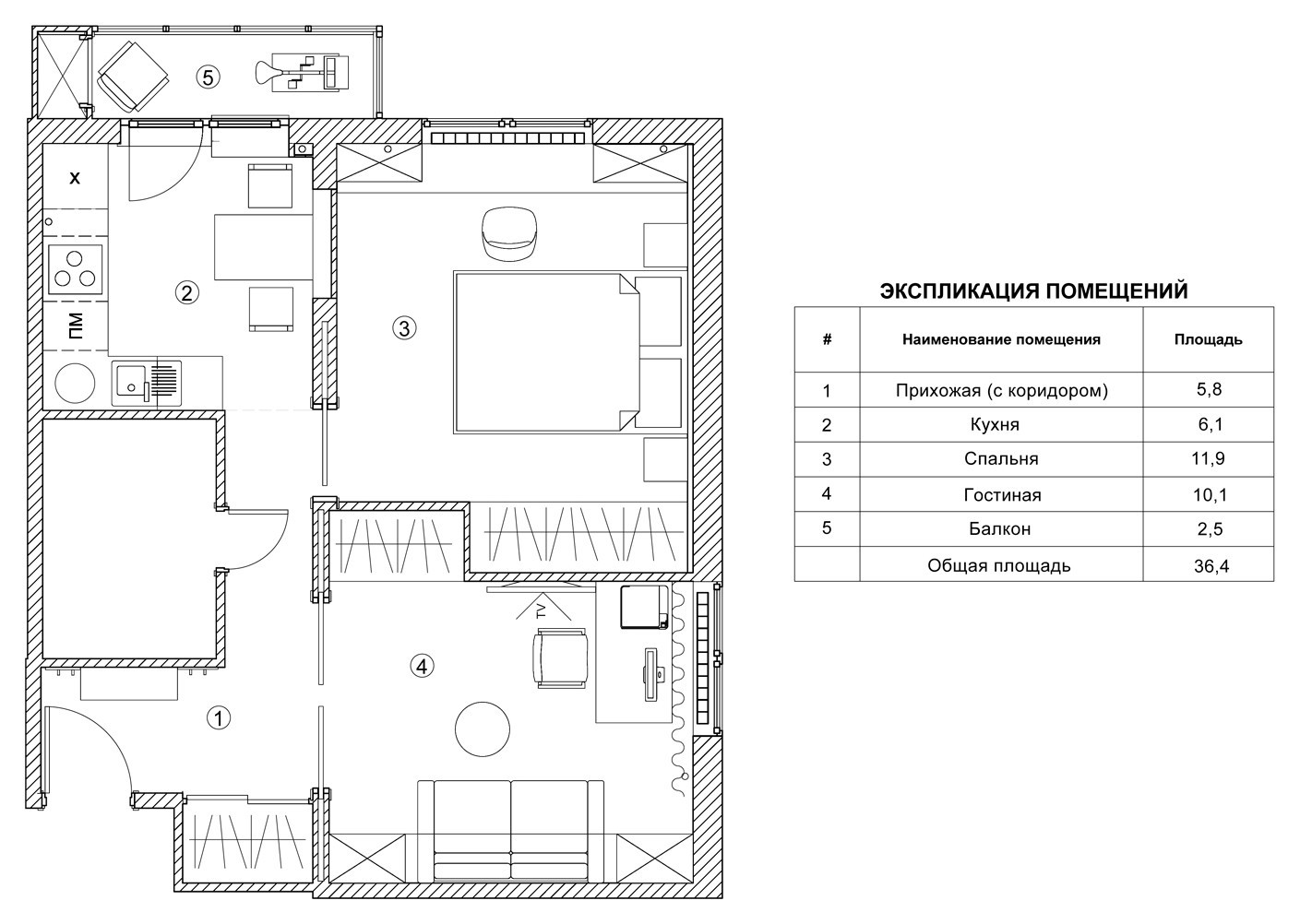
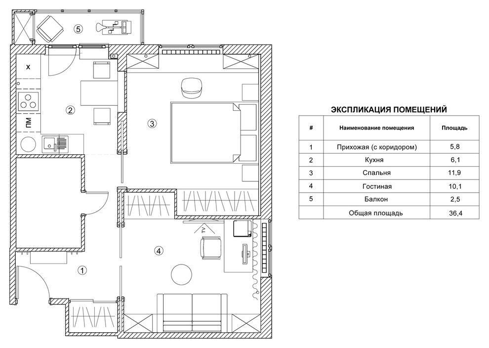
Уютная неоклассика в маленькой квартире
Заказчики зрелая семейная пара – много лет назад сын съехал из своей комнаты и ее обустроили под гостиную. Квартира – хрущевка, с маленькой кухней, узким коридором и небольшими комнатами. . . Пожелание заказчиков: большое количество мест хранения – за насыщенную жизнь накоплено много вещей, создание полноценной спальни (раньше был раскладной диван-кровать) оборудование гостиной также под кабинет хозяина, так как он работает дома, при этом уложиться в небольшой бюджет. . . После просмотра и выбора стиля, остановились на неоклассике, спокойных, пастельных тонах. Пол елочкой решили сохранить - отциклевали и покрыли прозрачным лаком, это послужило идеей повторить рисунок и в других помещениях: на фартуке в кухне, в прихожей на стене. . . Задачу мест хранения обыграли следующим образом: снесли смежную стену между комнатами и выстроили ее заново формой буквы Z, таким образом, в каждой комнате появилась ниша под встроенный шкаф. В спальне и в гостиной так же предусмотрели библиотеку – у хозяев много книг, кровать с подъемным механизмом - также для хранения пастельных принадлежностей. Раздвижные двери со скрытым карманом – это необходимость сохранить пространство, а также визуально его расширить - двойные двери в гостиную, как правило, открыты всегда, тем самым объединяя прихожую и комнату. . . Кухню не стали отделять и сохранили единым пространством с коридором, выкрасив стены в одинаковый спокойный цвет майской травы, добавили белый фартуки и мебель благородно-серого цвета. Теперь это любимое место хозяйки – здесь уютно и по-летнему тепло круглый год, в нишу с подсветкой она поставила красивую посуду.
Другие фотографии в проекте
19 раз сохранено в статьи и альбомы идей:
Добавил(-а) в альбом: Кухня
Добавил(-а) в альбом: Идеи пользователя Анастасия
Добавил(-а) в альбом: планировка
Вопросы к фото 0
Задайте вопрос
Вам ответят эксперты. Пришлем уведомление, когда вам ответят




