
Дизайнеры интерьера
0
Уютная квартира для семьи из 4 человек 80 м2
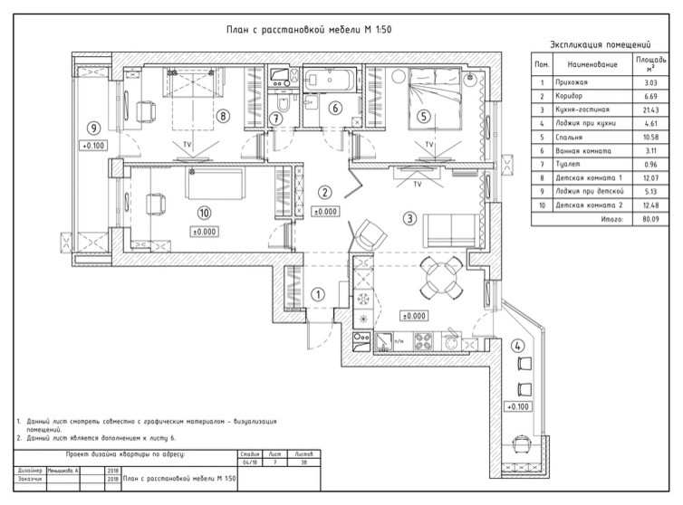
Хочу познакомить вас со своим новым проектом для семейной пары с двумя детками (девочка 1,5 годика и мальчик 7 лет ) И как всегда начали мы с перепланировки, была куплена трехкомнатная квартира. . . Задачи были поставлены на планировку такие: . -две отдельные детские -отдельная родительская спальня . -объединить пространство кухни с гостиной и холлом . -отдельный обеденный стол . -дополнительное спальное место когда приезжают гости ( в детской мальчика разместили диван) . -также разместить большое количество фотографий в рамках и магнитов после путешествий . Для кухни необходимо было вместить: . -встроенный духовой шкаф с СВЧ . -встроенную кофеварку . -встроенный холодильник . -дополнительную встроенную морозильную камеру . -посудомоечную машину 60 см .
Другие фотографии в проекте
Вопросы к фото 0
Задайте вопрос
Вам ответят эксперты. Пришлем уведомление, когда вам ответят




