
Архитекторы
5
·
10 отзывов
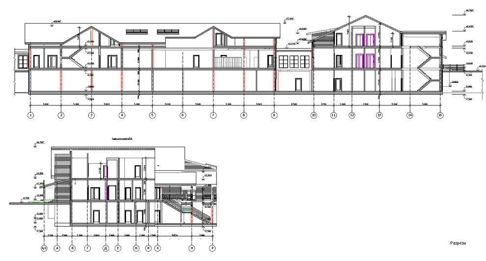
Центр спортивной медицины и реабилитации 4000 кв.м.
Разработка проекта реабилитационного центра
Другие фотографии в проекте
Вопросы к фото 0
Задайте вопрос
Вам ответят эксперты. Пришлем уведомление, когда вам ответят

Архитекторы
5
·
10 отзывов
Разработка проекта реабилитационного центра
Другие фотографии в проекте
Вам ответят эксперты. Пришлем уведомление, когда вам ответят