
Архитекторы
0
TriBeCa Appartments
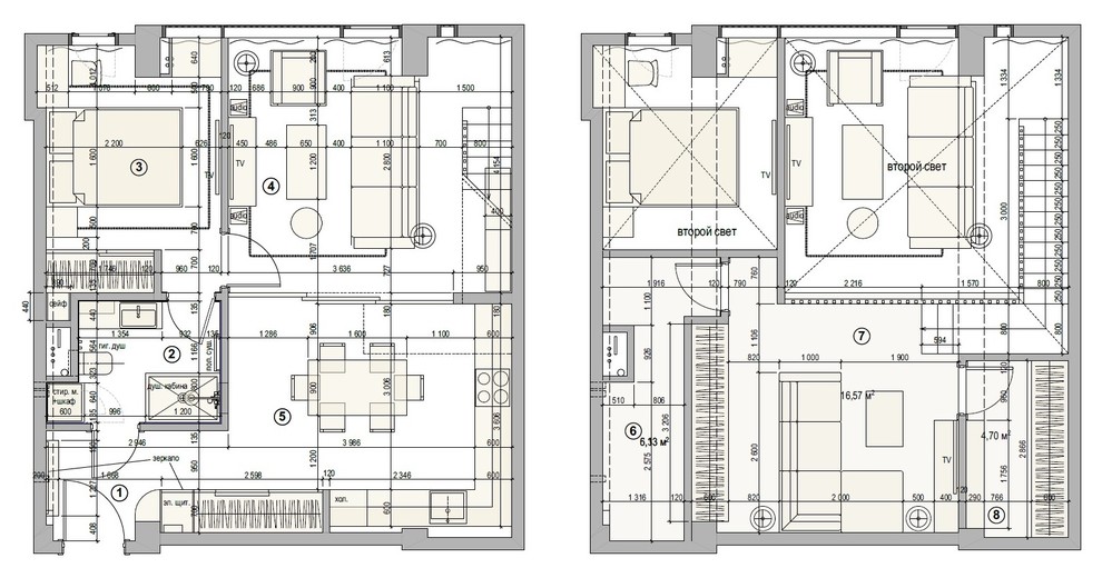
Дизайн проект апартамента в ЖК Tribeca Appartments. . Заказчики — зрелая пара, уважающие традиционные стили в интерьере, но без тяги к излишествам в декоре. Стиль, на котором мы остановились можно назвать современной классикой. . Первоначально помещение представляло из себя квадратное в плане пространство с высокими потолками и одним огромным окном. Нам удалось найти планировочное решение, учитывающее все пожелания: большую кухню с возможностью объединения с залом, светлую спальню, санузел с отдельным входом для гостей. Было решено организовать дополнительное лёгкое перекрытие, на котором разместилась зона отдыха, техническое помещение и кладовая.
Другие фотографии в проекте
Вопросы к фото 0
Задайте вопрос
Вам ответят эксперты. Пришлем уведомление, когда вам ответят




