
Дизайнеры интерьера
5
·
10 отзывов
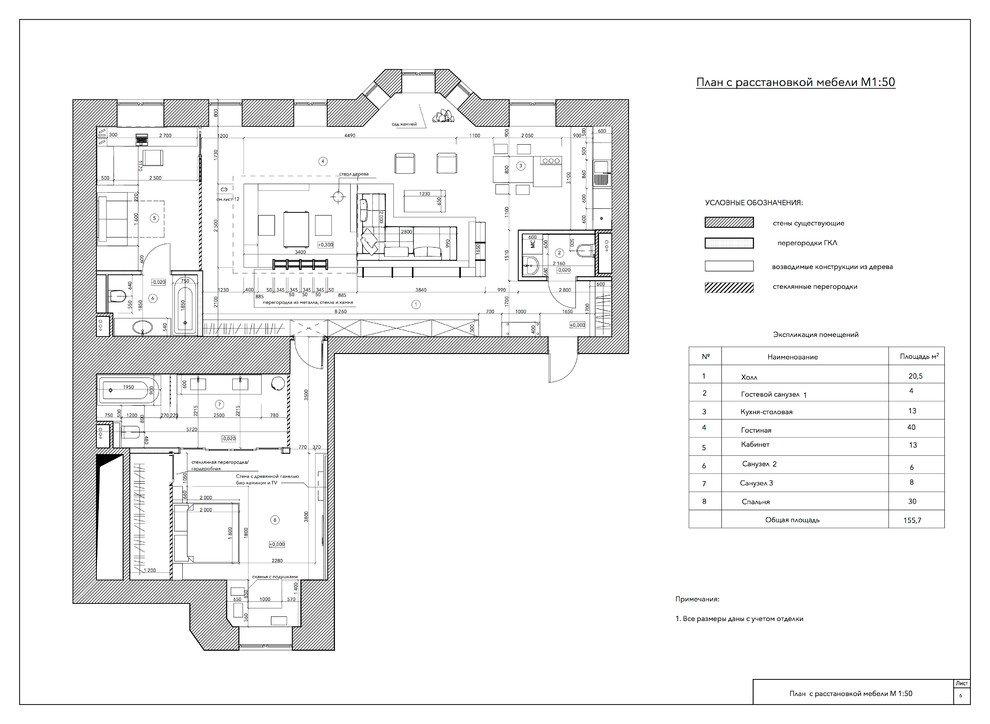
Тишина внутри. Квартира 155,7 кв м в ЖК "Полянка-44"
Утвержденный вариант планировки . Японская стилизация . Линецкая Лиза
Другие фотографии в проекте
Вопросы к фото 0
Задайте вопрос
Вам ответят эксперты. Пришлем уведомление, когда вам ответят




