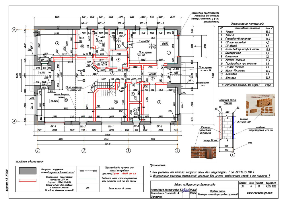
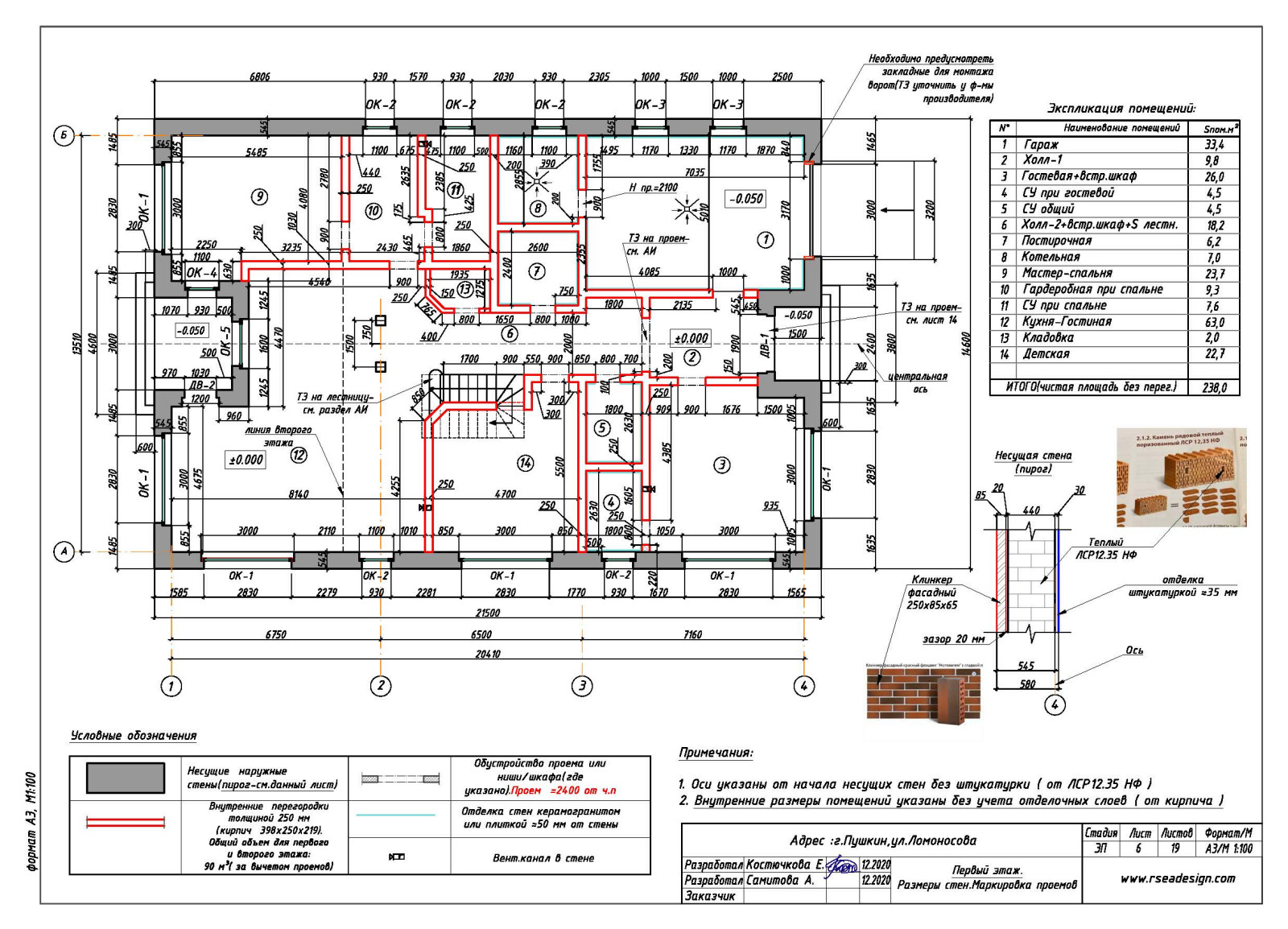
Таунхаус в г.Пушкин

Другие фотографии в проекте Таунхаус в г.Пушкин

Вопросы к фото 0

Задайте вопрос

Вам ответят эксперты. Пришлем уведомление, когда вам ответят

Переходный, Санкт-Петербург, кирпичный дом заказать проект, планировка кирпичного дома, пример проекта кирпичного дома, проектирование загородных домов, чертежи для кирпичного дома, эскизный проект кирпичнго дома

Алена Cамитова Елизавета Костючкова
Смотреть профиль

13

отзывов

5

Рейтинг

Таунхаус в г.Пушкин

Жилой двухэтажный дом общей площадью 380 м.кв. Пример эскизного проекта

Вопросы к фото 0