
Дизайнеры интерьера
5
·
10 отзывов
Светлая квартира для семьи из 3х человек. Визуализация гостинной и спальни.
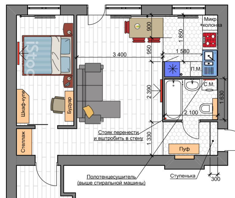
Образец одного из листов проектной документации. Какие чертежи будут нужны строительной бригаде в зависимости от объема работ и бюджета, выясняем на консультации.
Другие фотографии в проекте
Вопросы к фото 0
Задайте вопрос
Вам ответят эксперты. Пришлем уведомление, когда вам ответят




