Студия в ЖК West Garden

Другие фотографии в проекте Студия в ЖК West Garden

Вопросы к фото 0

Задайте вопрос

Вам ответят эксперты. Пришлем уведомление, когда вам ответят

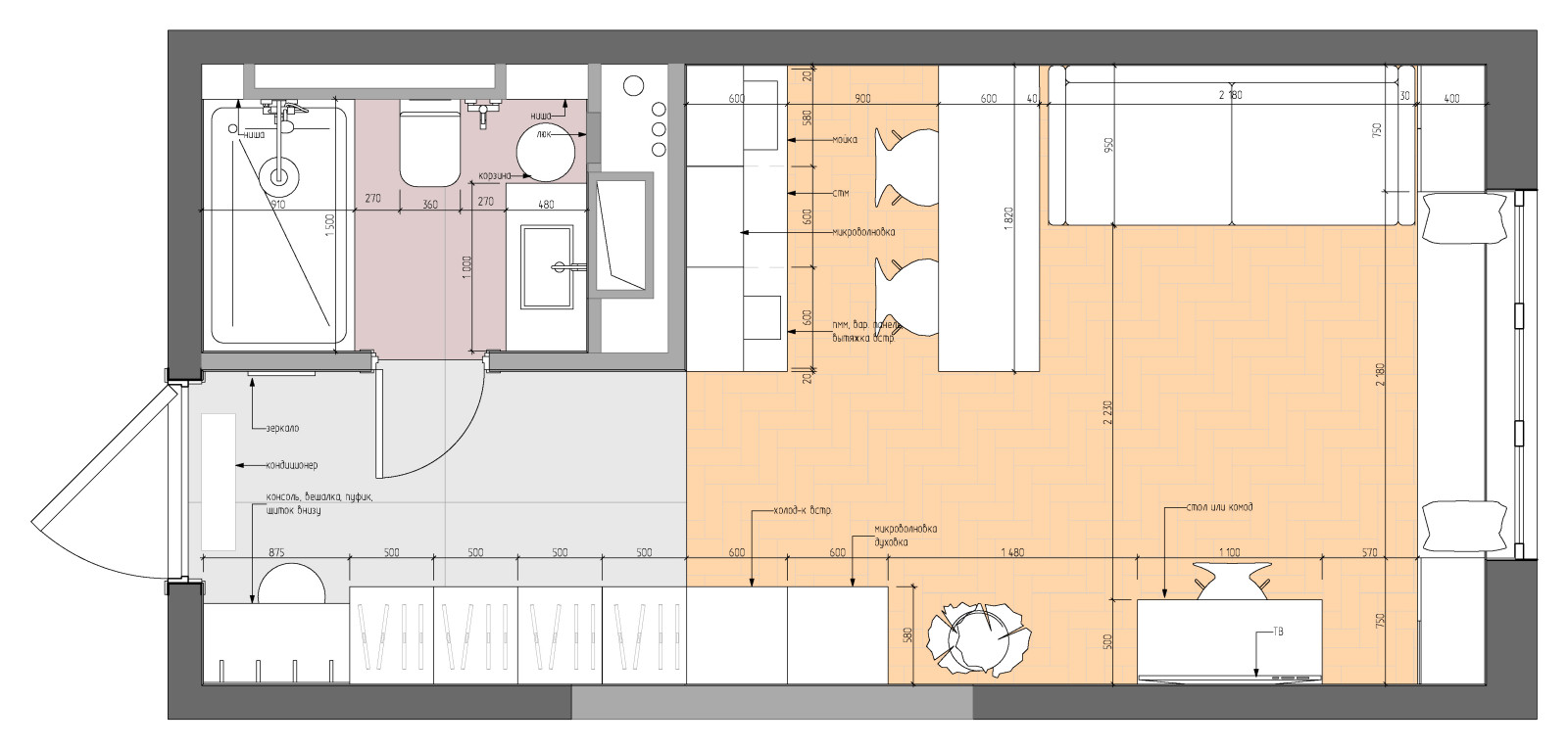
Контемпорари, Москва, План с расстановкой мебели, белая студия, белый интерьер, дизайн-проект студии, квартира-студия, мебельный план, минимализм, молдинги в интерьере, план с мебелью, скандиинтерьер, скандинавский интерьер, студия

Светлана Шевченко

Светлана Шевченко

Дизайнеры интерьера

Смотреть профиль

3

отзыва

5

Рейтинг

Студия в ЖК West Garden

Эту квартиру-малышку требовалось максимально наполнить светом, оставить как можно больше пространства, не потеряв при этом функциональность. . . Эффект был достигнут, благодаря белому интерьеру с добавлением текстуры дерева и текстиля пастельных оттенков. Линия шкафа от прихожей до комнаты скрывает в себе системы хранения, туда поместилась одежда и хоз. принадлежности. . . Комната осталась максимально просторной. Изюминкой интерьера стал стеллаж вокруг окна - прекрасное место для чтения, работы или созерцания видов из окна.

Вопросы к фото 0