
Вопросы к фото 0
Задайте вопрос
Вам ответят эксперты. Пришлем уведомление, когда вам ответят
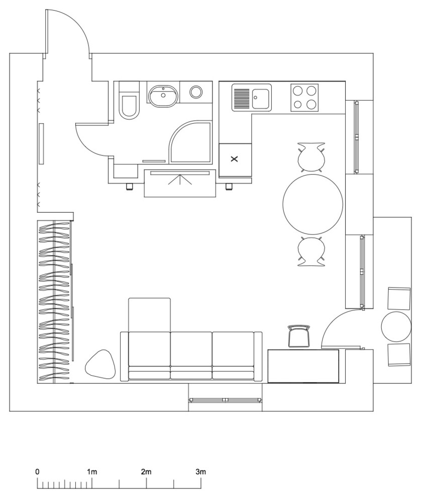
contemporary design, studio, Ванная комната, Контемпорари, Москва, с душевой кабиной, совмещенная ванная
Похожие фотографии

Зеркала Miralls в бутик-апарт-отеле OKNO. Дизайнер проекта: Юлия Гамидова
Зеркала Miralls

Зеркала Miralls в бутик-апарт-отеле OKNO. Дизайнер проекта: Юлия Гамидова
Зеркала Miralls

Ванна и сан.узел в современном стиле
Марина Ильчук

Уникальный мир | Millennium park
Екатерина Хорева

Москва, ЖК Роттердам
Татьяна Есипова

ЖК ЖУКОВКА
Валерия Кошеутова

ЖК Событие
Hatka Build

Студия на мансарде для мечтательницы
Алина Жукова

ОСЕННЕЕ НАСТРОЕНИЕ
Екатерина Скиндирева

Квартира для пары в духе парижского минимализма
Марина Тараканова

Квартал на Грушовке
Студия КИВИ





