Спартак
marisrub

marisrub

Проектирование и строительство

0

Спартак

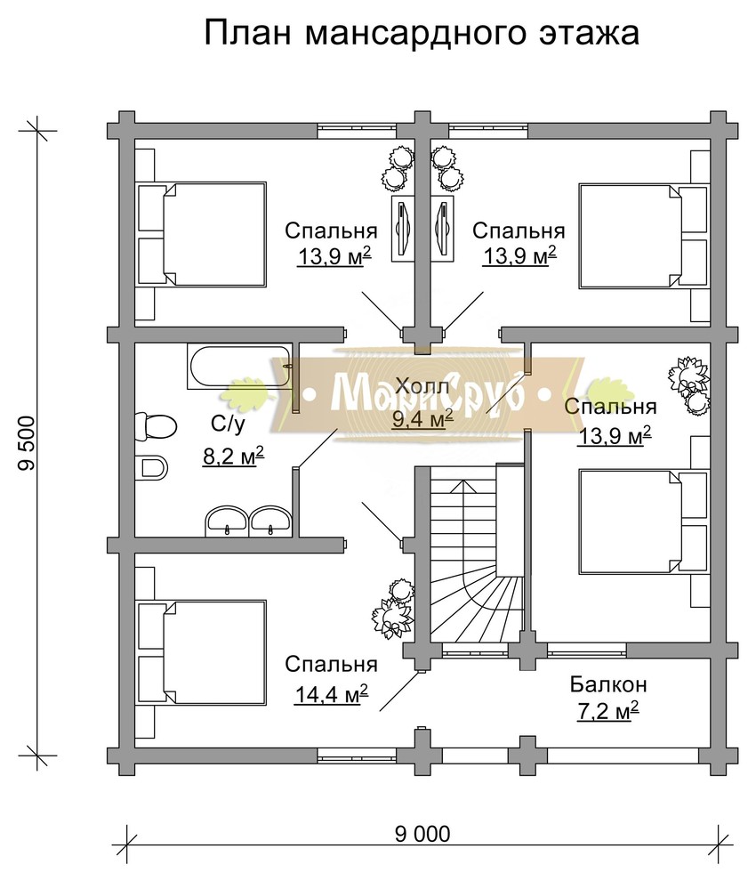
На первом этаже дома разместились большая терраса, гостиная, кинозал, кухня-столовая и спальня. На мансарде находятся 4 спальни и с/у. . . Общая площадь 198,1 кв.м. . Жилая площадь 164,9 кв.м. . Площадь первого этажа 117,2 кв.м. . Площадь второго этажа 80,9 кв.м.

Другие фотографии в проекте

СпартакСпартак

Вопросы к фото 0

Задайте вопрос

Вам ответят эксперты. Пришлем уведомление, когда вам ответят