
Дизайнеры интерьера
5
·
10 отзывов
Современная квартирка как в кино
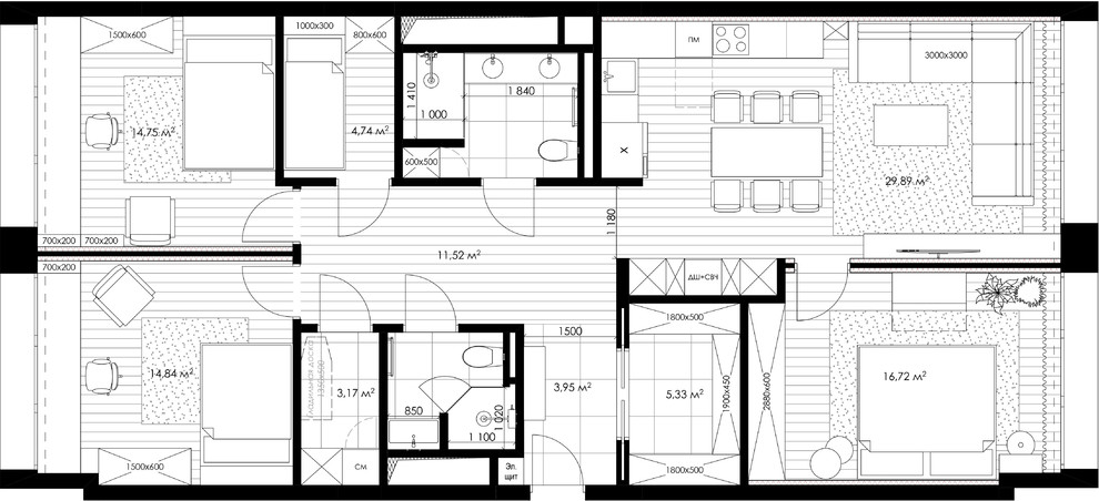
На плане можно рассмотреть расположение второго санузла и детских, а также гардеробной комнаты, о которой мы говорили в контексте небольшого увеличения кухни-гостиной. Опять-таки, интересное решение сделать одну общую гардеробную для всех членов семьи прямо на входе в квартиру — никаких висящих курток в прихожей, стоящей обуви и сумок. . Ещё один интересный момент — маленькая отдельная комнатка возле большого санузла — как видно, там есть место только для кровати и небольшой тумбочки. Этот уголок предназначен для сна няни, которая живёт с заказчиками и помогает по хозяйству и с детьми. .
Другие фотографии в проекте
Вопросы к фото 0
Задайте вопрос
Вам ответят эксперты. Пришлем уведомление, когда вам ответят




