
Дизайнеры интерьера
0
Советский модерн
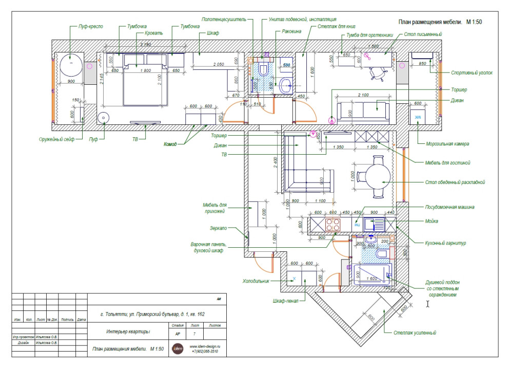
Рассмотрим планировочное решение. . . Войдя в квартиру, мы попадаем в компактную прихожую, где, не смотря на размер, есть место для обуви и верхней одежды. По сути, в данной планировке, конкретно прихожая, практически не занимает место, а является просто частью коридора. В этом есть определённый смысл. Заказчик очень не хотел занимать место прихожей. . .
Другие фотографии в проекте
Вопросы к фото 0
Задайте вопрос
Вам ответят эксперты. Пришлем уведомление, когда вам ответят




