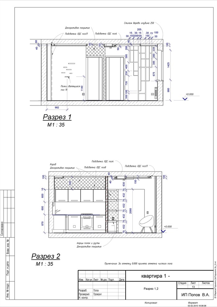
Пример необходимых разрезов (в каждом проекте свое колличество)

Другие фотографии в проекте Состав чертежей "Интерьер"

План санузла
Видовые проекции (в каждом проекте свое колличество)
План электрических теплых полов
План электроустановочного оборудования
План потолка размеры
План расстановка мебели
Состав чертежей (примерный)

Вопросы к фото 0

Задайте вопрос

Вам ответят эксперты. Пришлем уведомление, когда вам ответят

Контемпорари