
Архитекторы
5
·
5 отзывов
Smolenka Loft
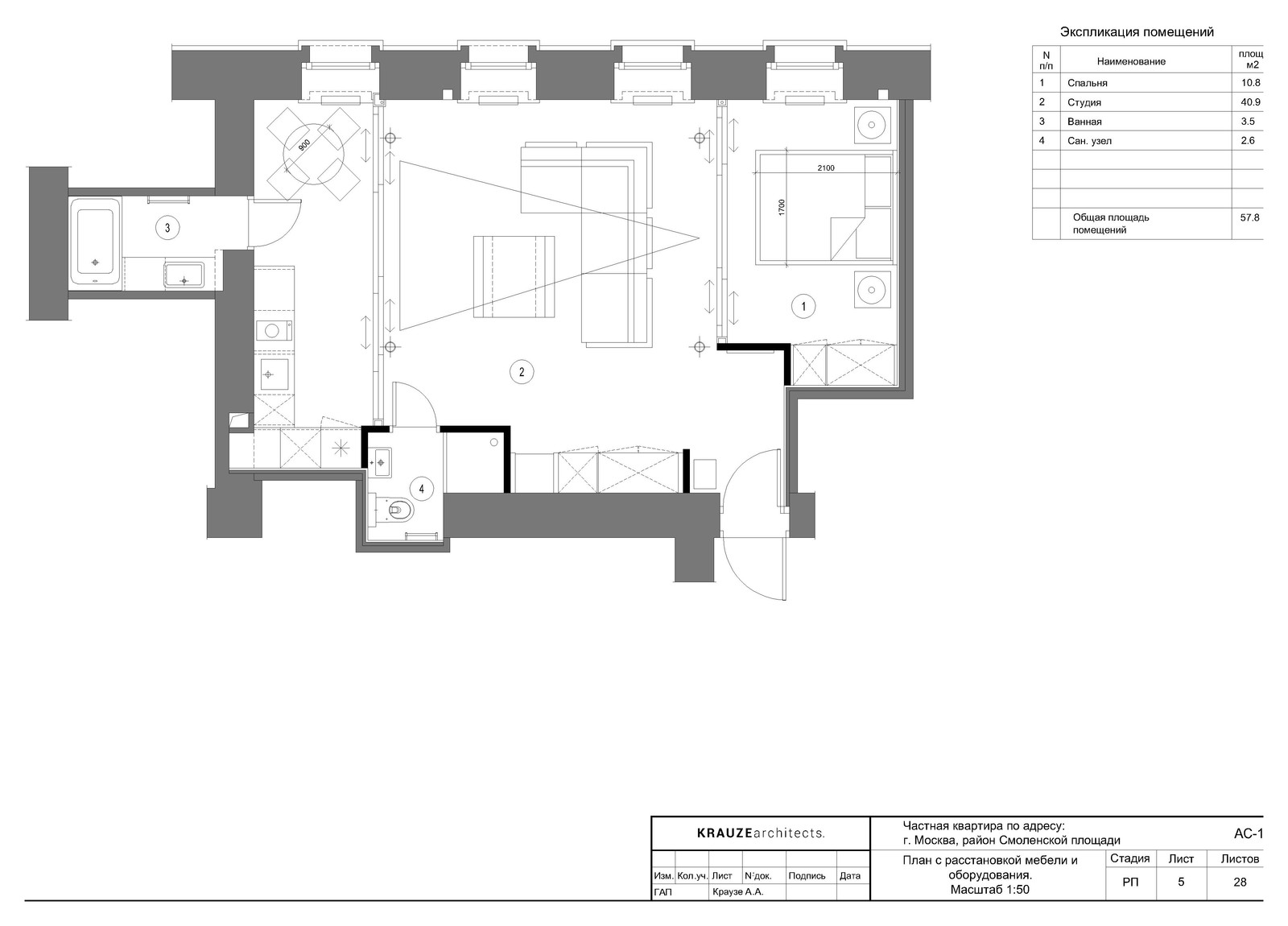
Заказчик хотел видеть интересный проект для молодого человека, квартиру, в которой он мог бы комфортно жить, учиться и принимать гостей. Необходимо было произвести комплексную реконструкцию старой квартиры с учетом современных требований к жилью. Дом находится в районе Смоленской площади. Это бывший доходный дом постройки начала ХХ века. Квартира до начала реконструкции представляла собой печальное зрелище, ремонта в ней более 30 лет. . Изначально квартира двухкомнатная, перепланированная после уплотнения доходного дома. Интересной особенностью исходной планировки было наличие обособленных ванной и сан узла, при этом вход в ванную был организован через кухню. Несущие стены кирпичные, перекрытия – деревянные по металлическим балкам. Кирпичная кладка высокого качества, сохранилась отлично. . При создании концепции проекта основное внимание уделили многофункциональному использования пространства квартиры. Был разработан проект комплексного усиления конструкции перекрытия и замены разгружающих деревянных перегородок на металлические колоны и двутавровые балки. Пространство зонировано массивными раздвижными перегородками, нагрузка, от которых передается на новый несущий каркас. По сути, на существующих несущих кирпичных стенах мы разместили новый металлокаркас, изолированный от нагрузок от существующих перекрытий, и внутри него смонтировали интерьер квартиры. . Существующие жилую комнату, спальню и кухню мы объединили в единое пространство, разграниченное высокими раздвижными перегородками от пола до потолка. Такое решение позволило создать легко трансформируемое пространство. В гостиной организована встроенная мультимедийная система: в конструкции подвесного потолка скрыт экран для проектора и размещена потолочная акустика, установлена система управления светом с несколькими сценариями, моторизованные рулонные экраны на окнах, хранилище данных и игровая приставка. Управление всей системой осуществляется с айпада, стойка с техникой размещена во встроенном шкафу. Площадь сан узла увеличили и разместили душевую кабину, ванную сохранили в существующих габаритах, но изменили расстановку сантехники. . Исторические кирпичные стены и своды над оконными проемами стали изюминкой проекта. Качественная покраска проявила структуру кирпичной кладки, а дорогие дубовые окна создали четкую графику. В интерьере применены: массив натурального дерева, шпон, стекло и металл, окрашенный в черный цвет, черный кориан. . Мы разработали и изготовили с российской мебельной компанией индивидуальную встроенную мебель, кухню, межкомнатные двери и раздвижные перегородки. Мягкая мебель и журнальный стол итальянские. Встроенный свет бельгийский, декоративные светильники американские. Шерстяной ковер ручной работы нашли в Непале специально для этого проекта.
Другие фотографии в проекте
Вопросы к фото 2
Александр Краузе
10 л.
Наталья Гаранина
10 л.
Елена Денисова
5 л.
Наталья Алтынбаева
10 л.
Так красиво! А на моих 17 кв м так же уютно и красиво будет?
Александр Краузе
10 л.
Задайте вопрос
Вам ответят эксперты. Пришлем уведомление, когда вам ответят
$$, bedroom doors, black radiator, brick wall, brown shades, candles, dark gray sofa, geometric rug, gray sectional sofa, high ceiling, industrial, loft, loftspace, meridiani, modern, off-white poufs, painted brick, patterned rug, sliding doors, tripod lamp, visualcomfort, white brick wall, Белый, Гостиная, Индустриальный, Маленький, Москва, Открытая планировка, Парадная, Скрытый/с выдвижным механизмом, Совмещённая гостиная и кухня, Средняя паркетная доска, белая кирпичная стена, белые пуфы, деревянный пол, ковер, раздвижные двери, серый диван
Похожие фотографии

Квартира в ЗИЛАРТ с красной дверью
На фото: маленькая открытая, объединенная гостиная комната в стиле лофт с белыми стенами, паркетным полом среднего тона, отдельно стоящим телевизором и бежевым полом для на участке и в саду
Надя Требухина

Московский лофт
Пример оригинального дизайна: маленькая парадная, открытая, объединенная гостиная комната в стиле лофт с паркетным полом среднего тона и серыми стенами для на участке и в саду
Студия juicy-hall

Геометрический двухуровневый лофт
Источник вдохновения для домашнего уюта: маленькая парадная, двухуровневая, объединенная гостиная комната в стиле лофт с серыми стенами, паркетным полом среднего тона, телевизором на стене и бежевым полом для на участке и в саду
Маргарита Иванова / АрхиТочка

Геометрический двухуровневый лофт
Пример оригинального дизайна: маленькая парадная, двухуровневая, объединенная гостиная комната в стиле лофт с серыми стенами, паркетным полом среднего тона, телевизором на стене и бежевым полом для на участке и в саду
Маргарита Иванова / АрхиТочка

Геометрический двухуровневый лофт
На фото: маленькая парадная, двухуровневая, объединенная гостиная комната в стиле лофт с серыми стенами, паркетным полом среднего тона, телевизором на стене и бежевым полом для на участке и в саду
Маргарита Иванова / АрхиТочка

Геометрический двухуровневый лофт
На фото: маленькая парадная, двухуровневая, объединенная гостиная комната в стиле лофт с серыми стенами, паркетным полом среднего тона, телевизором на стене и бежевым полом для на участке и в саду с
Маргарита Иванова / АрхиТочка

Воздушная и легкая квартира - вид из гостиной в кухню-столовую
Стильный дизайн: маленькая открытая, объединенная гостиная комната в современном стиле с белыми стенами и паркетным полом среднего тона для на участке и в саду - последний тренд
Daria Shatilova

Воздушная и легкая квартира
Стильный дизайн: маленькая открытая, объединенная гостиная комната в современном стиле с белыми стенами и паркетным полом среднего тона для на участке и в саду - последний тренд
Daria Shatilova

архитектурный проект квартиры на Садовая-Спасская улица, 19/1
На фото: парадная, открытая, объединенная гостиная комната среднего размера в стиле лофт с белыми стенами, полом из керамогранита, телевизором на стене и черным полом без камина
АБ Doburo

Квартира в ЗИЛАРТ с красной дверью
Пример оригинального дизайна: маленькая открытая гостиная комната в стиле лофт с белыми стенами, паркетным полом среднего тона, отдельно стоящим телевизором и бежевым полом для на участке и в саду
Надя Требухина

Квартира в ЗИЛАРТ с красной дверью
На фото: маленькая открытая гостиная комната в стиле лофт с белыми стенами, паркетным полом среднего тона, отдельно стоящим телевизором и бежевым полом для на участке и в саду с
Надя Требухина

Квартира в ЗИЛАРТ с красной дверью
Свежая идея для дизайна: маленькая открытая гостиная комната в стиле лофт с белыми стенами, паркетным полом среднего тона, отдельно стоящим телевизором и бежевым полом для на участке и в саду - отличное фото интерьера
Надя Требухина





Наталья Гаранина
10 л.
Ковёр