
Архитекторы
5
·
2 отзыва
Small Chalet-80
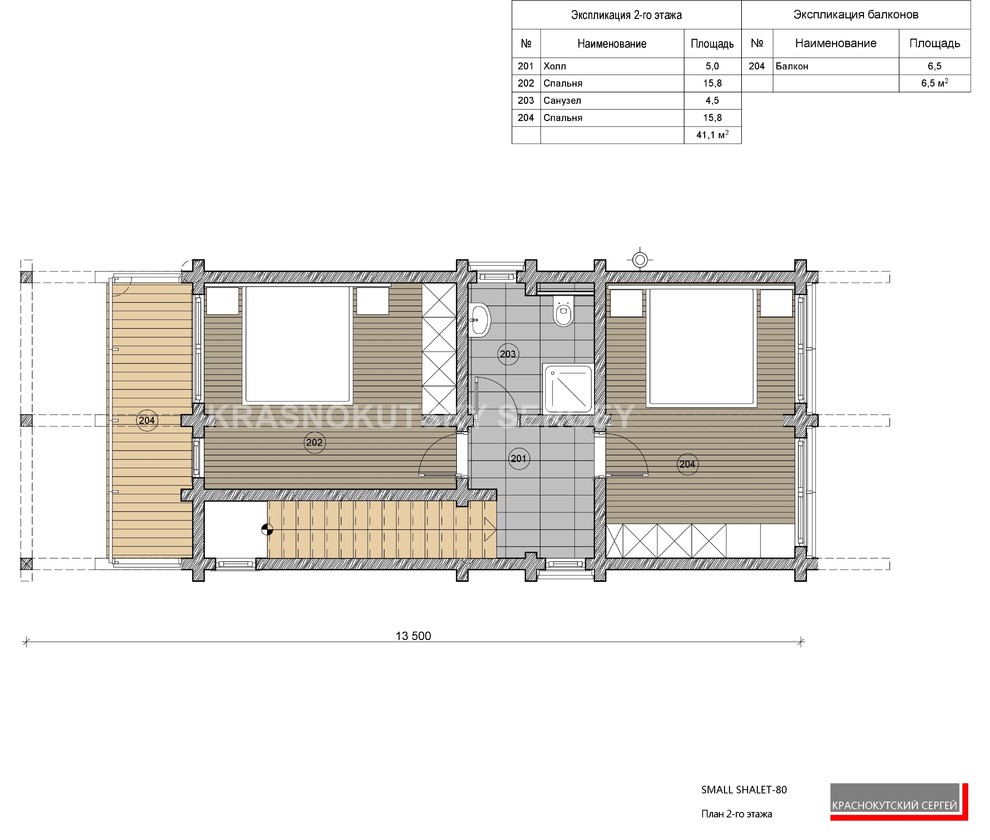
ДЕРЕВЯННЫЙ ДОМ SMALL CHALET-80 . . Архитектор . Сергей Краснокутский . Площадь . 107,0 м2 . Место . Любой подходящий участок . Год . 2015 . Стадия . Эскизный проект, Рабочий проект . Степень участия . идея, разработка эскизного и рабочего проектов . Визуализация . Григорий Блуднов . . Данный проект небольшого загородного дома разработан в современной стилистике с применением современных технологий. с ооттсылкой к традиции. . Данный дом оптимально подходит для комфортного размещения 4-6 человек одновременно. . Проект предполагает следующую планировку: на первом этаже: , гостиная, объединенная с кухней-столовой,крытая терраса, санузел, котельная с отдельным входом. В данном проекте также учтены подсобные помещения. На втором этаже устроены две спальни и санузел. . Дом подходит для размещения как на индивидуальном участке, так и на базе отдыха, санатории, кемпинге для сдачи в аренду.
Другие фотографии в проекте
Вопросы к фото 0
Задайте вопрос
Вам ответят эксперты. Пришлем уведомление, когда вам ответят



