
Дизайнеры интерьера
3.93
·
10 отзывов
Сколковский
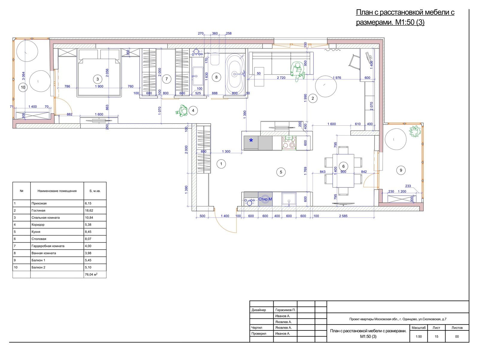
Проект перепланировки квартиры в ЖК «Сколковский» (Москва) общей площадью 70 м² для молодой пары без детей был разработан в мастерской Geometrium. Дизайнеры зонировали квартиру, учитывая предпочтения пары, в частности, занятия спортом, моделирование танков как хобби, а также возможность удаленной работы из дома. . . Интересным решением стало объединение общего пространство в единое, без перегородок и дверей (кроме санузла), так как гости редко остаются на ночлег. Материалы отделки повторяются во всех зонах. В студии имеется множество систем хранения, где дизайнеры часто использовали прием подстраивания стен и ниш под стандартную мебель. В спальне также есть отдельная гардеробная. Световое решение разнообразно: накладные и встроенные светильники, подсветка в нишах и потолке, люстра, прожектор и так далее. Многие изделия дизайнерские или известных брендов, как и большинство предметов мебели, кроме тех, что были изготовлены на заказ или привезены специально из Индонезии.
Другие фотографии в проекте
Вопросы к фото 0
Задайте вопрос
Вам ответят эксперты. Пришлем уведомление, когда вам ответят
Белый, Индустриальный, Коричневый, Мастер, Москва, Спальня, Средняя паркетная доска
Похожие фотографии

Современный лофт
Свежая идея для дизайна: хозяйская спальня среднего размера в стиле лофт с белыми стенами, паркетным полом среднего тона и коричневым полом - отличное фото интерьера
Ivan Kukushkin

Квартира на Большой Никитской
Свежая идея для дизайна: маленькая хозяйская спальня в стиле лофт с белыми стенами, паркетным полом среднего тона и коричневым полом для на участке и в саду - отличное фото интерьера
Елена Проскурина

Лофт в старинном доме
Идея дизайна: хозяйская спальня в стиле лофт с белыми стенами, паркетным полом среднего тона, коричневым полом и кирпичными стенами
Наталья Воробьева

Скандинавский лофт
Источник вдохновения для домашнего уюта: хозяйская спальня в стиле лофт с белыми стенами, паркетным полом среднего тона и коричневым полом
Катерина

Спальня в Пентхаусе
На фото: хозяйская спальня среднего размера в стиле лофт с белыми стенами, паркетным полом среднего тона и коричневым полом с
Студия дизайна интерьера Конструктор

ИЗЯЩНЫЙ АНДЕГРАУНД
Идея дизайна: хозяйская спальня среднего размера в стиле лофт с белыми стенами, полом из ламината и коричневым полом
3022 студия интерьерного дизайна

Крестовский de luxe
Источник вдохновения для домашнего уюта: большая хозяйская спальня в современном стиле с белыми стенами, паркетным полом среднего тона, коричневым полом и обоями на стенах
Нана Кобахидзе

Камень внизу, дерево вверху.
На фото: большая хозяйская спальня в белых тонах с отделкой деревом в современном стиле с белыми стенами, паркетным полом среднего тона, коричневым полом, потолком из вагонки, деревянными стенами и акцентной стеной без камина с
Алексей ТИХИЙ

Камень внизу, дерево вверху.
Пример оригинального дизайна: большая хозяйская спальня в белых тонах с отделкой деревом в современном стиле с белыми стенами, паркетным полом среднего тона, коричневым полом, потолком из вагонки, деревянными стенами и акцентной стеной без камина
Алексей ТИХИЙ

Квартира на Васильевском острове, Санкт-Петербург
Свежая идея для дизайна: хозяйская, серо-белая спальня среднего размера в стиле лофт с белыми стенами, полом из ламината, коричневым полом, многоуровневым потолком и кирпичными стенами - отличное фото интерьера
Валентина Дукмас

Квартира на Васильевском острове, Санкт-Петербург
На фото: хозяйская, серо-белая спальня среднего размера в стиле лофт с белыми стенами, полом из ламината, коричневым полом, многоуровневым потолком и кирпичными стенами с
Валентина Дукмас

Квартира на Васильевском острове, Санкт-Петербург
На фото: хозяйская, серо-белая спальня среднего размера в стиле лофт с белыми стенами, полом из ламината, коричневым полом, многоуровневым потолком и кирпичными стенами
Валентина Дукмас




