
Дизайнеры интерьера
0
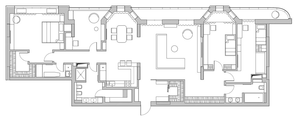
Символ человека в городе на реке
Из панорамных окон квартиры открывается вид на бескрайнюю гладь Волги. Хозяева — рестораторы и ценители путешествий. Дух и атмосфера интерьера складывались из фото и видео любимых ими мест. . Функционально важно было отделить детскую зону от взрослой и организовать пространство, где можно проводить время вместе. Мы создали планировку подобную городу в миниатюре с детским и взрослым кварталами и центральной площадью — гостиной. . Основой проекта стал ритм. Интерьер пронизан сеткой из линий и плоскостей, отражающих горизонт реки, дорог города, домов. . Цветовая палитра основана на сочетании серого и синего, составлена из красок пейзажа за окнами. Использован шпон разных пород дерева, природно сочетающихся между собой. Деревянные фактуры на стенах, потолке, в мебели и дверях позволили сделать интерьер тёплым и уютным, как и хотели заказчики. . Квартира ориентирована на запад, закатное солнце обволакивает интерьер тёплым розовым светом. Это придаёт задуманной гамме цветов новое восприятие.
Другие фотографии в проекте
Вопросы к фото 0
Задайте вопрос
Вам ответят эксперты. Пришлем уведомление, когда вам ответят




