
Производство и установка кухонь
5
·
10 отзывов
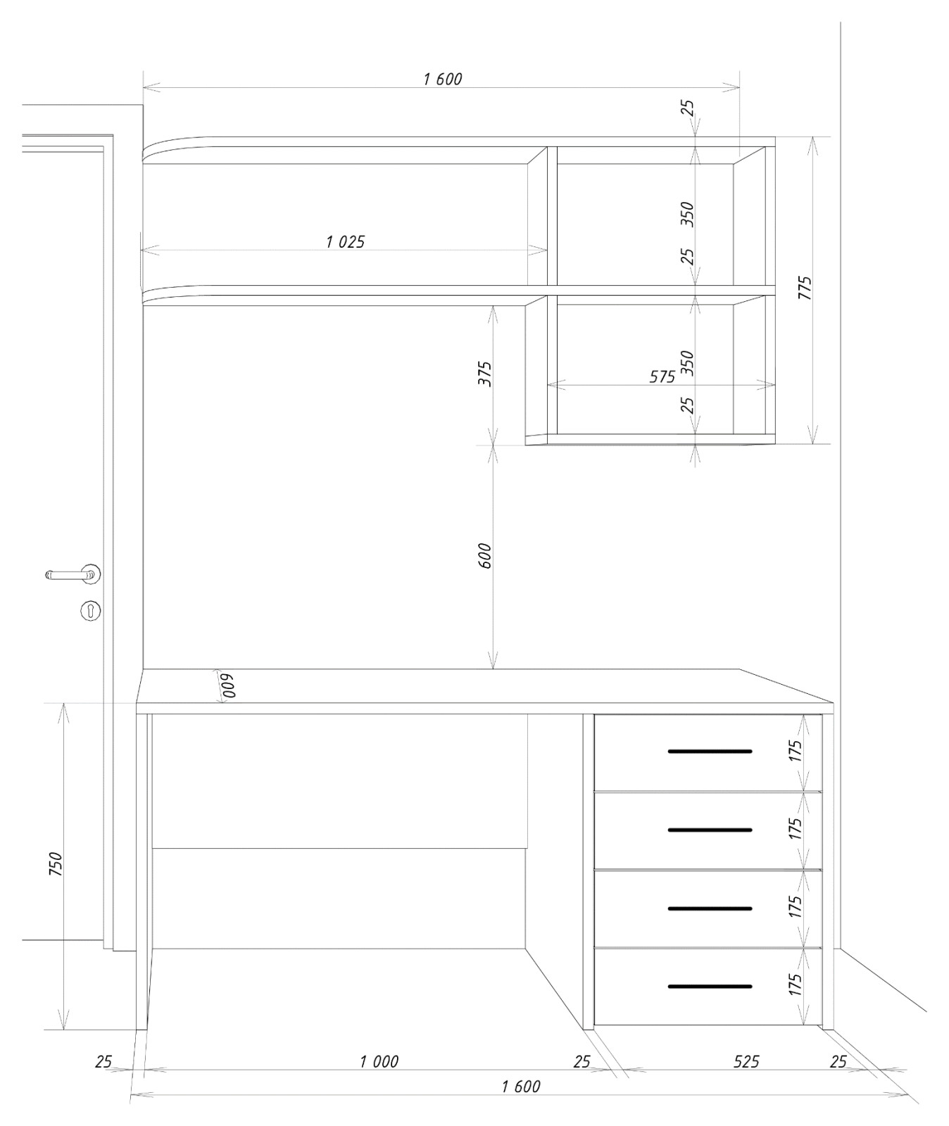
Шкафы, стол и детская №1843-20
Шкаф-купе коридор . . Материалы: . 1) Корпус ЛДСП W980SM Белый гладкий. . 2) Фасады и видимые детали МДФ Эмаль глянец RAL 9003 . 3) Зеркало серебро. . 4) Сидушка – каретная стяжка цвет VITTORIO GREY. . 5) Ручка врезная, отделка хром матовый МАКМАРТ Артикул: 183.35.SC (от пола до ручки 1100мм). . 6) Без задней стенки. . . Детская . . Материалы: . А) Пенал . 1) Корпус ЛДСП Черный/Белый - U899 ST9 Нежный чёрный/ W980SM Белый гладкий. . 2) Задняя стенка ХДФ Черный . Б) Шкаф-купе. . 1) Видимые части корпуса ЛДСП U899 ST9 Нежный чёрный. . 2) Наполнение ЛДСП Белое. . 3) Задняя стенка ХДФ Белый. . 4) Фасады купе МДФ Эмаль глянец RAL 9003 . 5) Ручка врезная, отделка черный матовый МАКМАРТ Артикул: 8.1078.B000.0252 (от пола до ручки 1000мм). . 6) Фурнитура Blum. . В) Полки . 1) Корпус ЛДСП Черный/Белый - U899 ST9 Нежный чёрный/ W980SM Белый гладкий. . 2) Задняя стенка ЛДСП. . 3) Фасады МДФ Эмаль глянец RAL 9003 . 4) Без ручек. Tip-on (открывание от нажатия). . 5) Фурнитура Blum. . Г) Стол . 1) Корпус ЛДСП Черный - U899 ST9 Нежный чёрный. . 2) Фасады ящиков МДФ Эмаль глянец RAL 9003. . 3) Профиль-ручка 160мм черный матовый МДМ PH.RU10.160.BL . 4) Фурнитура Blum. . . Стол рабочий c полкой . . Материалы: . 1) Корпус ЛДСП H1277 ST9 Акация Лэйклэнд светлая. . 2) Фасады ящиков МДФ Эмаль глянец RAL 9003 . 3) Профиль-ручка 160мм алюминий матовый МДМ PH.RU10.160.AL . 4) Фурнитура Blum. . . Шкаф-купе спальня . . Материалы: . 1) Видимые части корпуса и наполнение ЛДСП H1277 ST9 Акация Лэйклэнд светлая. . 2) Без задней стенки. . 3) Фасады купе МДФ Эмаль глянец RAL 9003. . 4) Зеркало серебро. . 5) Ручка врезная, отделка хром матовый МАКМАРТ Артикул: 183.35.SC (от пола до ручки 1100мм). . 6) Фурнитура Blum.
Другие фотографии в проекте
Вопросы к фото 0
Задайте вопрос
Вам ответят эксперты. Пришлем уведомление, когда вам ответят




