
Дизайнеры интерьера
0
Шале в доме из клееного бруса
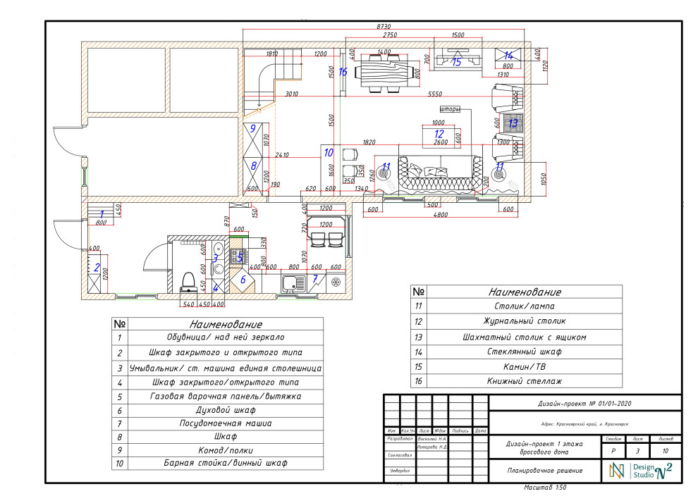
Планировочное решение первого этажа дома.
Другие фотографии в проекте
Вопросы к фото 0
Задайте вопрос
Вам ответят эксперты. Пришлем уведомление, когда вам ответят

Дизайнеры интерьера
0
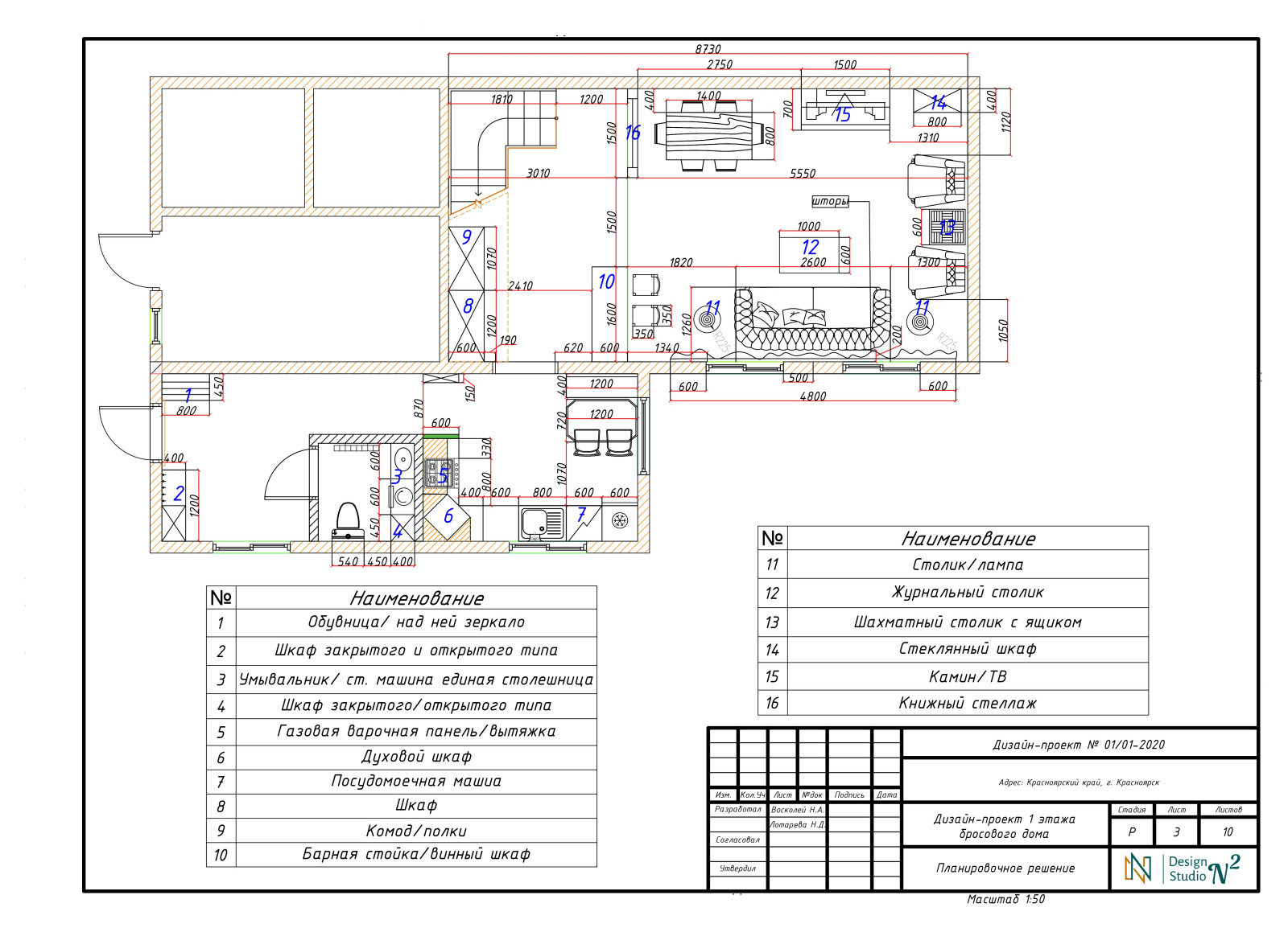
Планировочное решение первого этажа дома.
Другие фотографии в проекте
Вам ответят эксперты. Пришлем уведомление, когда вам ответят