
Дизайнеры интерьера
5
·
10 отзывов
Серо-синий современный интерьер
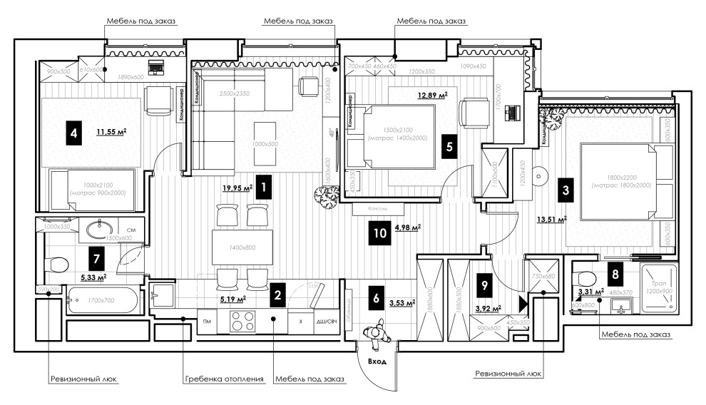
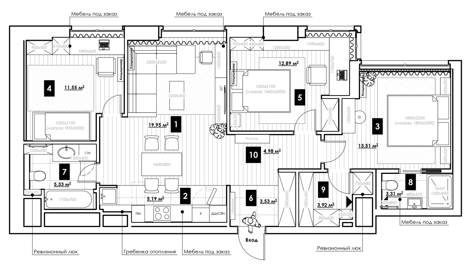
Общая площадь квартиры — 84 кв. м. Как видно по планировке, от входа сразу попадаешь в кухню-гостиную (1). Налево — большой санузел (7) и комната сына-подростка (4), направо — комната девочки (5) и спальня родителей (3) с гардеробной и малым санузлом (9 и 8, соответственно).
Другие фотографии в проекте
Вопросы к фото 0
Задайте вопрос
Вам ответят эксперты. Пришлем уведомление, когда вам ответят




