S16

Другие фотографии в проекте S16

S16
S16

Вопросы к фото 0

Задайте вопрос

Вам ответят эксперты. Пришлем уведомление, когда вам ответят

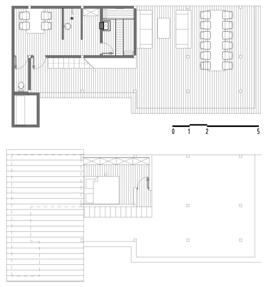
Контемпорари, баня, гостевой, домик, план, планировка, схема