
Ремонт и отделка квартир и домов
4.96
·
10 отзывов
Ремонт однокомнатной новостройки в ЖК Headliner
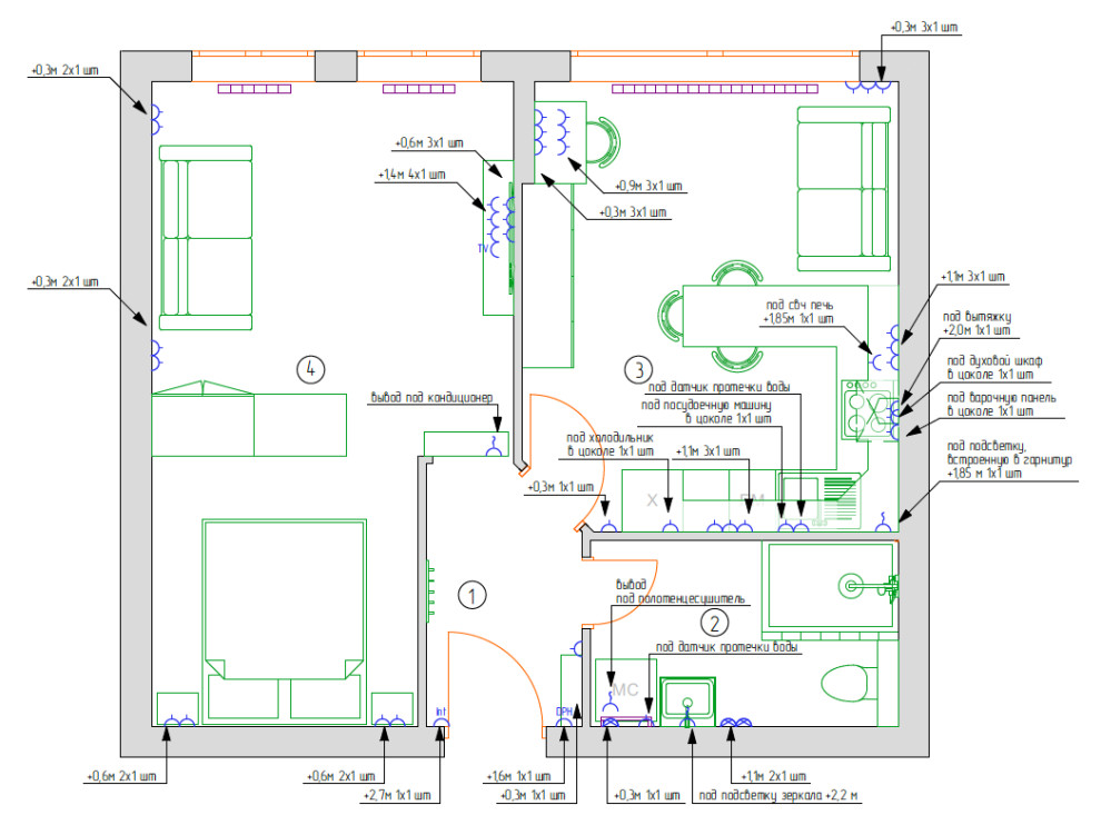
ИД 37030. Дизайн проект + ремонт 1 комнатной квартиры в ЖК Хедлайнер. . . По данному адресу был произведён ремонт по дизайн-проекту нашего специалиста. . . В первую очередь у нас получилась кухня-гостиная в бежевых тонах. По желанию заказчика кухня предусмотрена с островом в виде барной стойки, а рядом у окна расположился удобный, мягкий диван. . . Кухонный гарнитур оснащён самой необходимой техникой. Ручки на шкафчиках спрятаны, чтобы пользователи не оставляли следы на поверхности. Плитка в помещении использовалась керамогранитная: на фартуке кухни с геометрическими узорами, а на полу имитация деревянного ламината. . . В кухне, как и во всей квартире используется сложная подсветка. Отдельно можно подсветить остров, кухонный гарнитур и диван. Кроме того, осветить диван можно настенными бра, которые привносят домашний уют и комфорт. . . По дизайн-проекту напротив барной стойки размещается платяной зеркальный шкаф-купе, где хозяин квартиры будет хранить свои вещи. В дополнение, напротив дивана установлен столик под рабочую место хозяина, над которым вмонтированы розетки, чтобы там можно было расположиться с ноутбуком. . . Стены жилой комнаты, как и кухни обклеены в основном обоями тканевой фактуры. В этом месте комната делится на 2 части – зона ТВ и спальное место. Разделяющей стеной здесь выступает шкаф со сквозными и скрытыми полками. Изящный цветочный рисунок на обоях обрамляет большую двуспальную кровать. Над её изголовьем тоже присутствуют бра. От штор заказчик отказался, поэтому окна оснащены рулонными шторами. . . Ванная комната выложена плиткой трёх видов – белой, коричневой и золотистым узором на белом фоне. Душевая кабина отделена от туалета красивыми стеклоблоками. Имеется раковина-тумба и стиральная машина. Над инсталляцией унитаза скрыта в короб система удалённого отключения воды в квартире. Весь интерьер оформлен в современном стиле. Фактически ремонт продлился 2, 5 месяца, не считая двух месяцев простоя из-за карантина. Отделка получилась светлой, лёгкой и функциональной. . . Стоимость ремонта: 400 537 р. . Стоимость черновых материалов: 117 957 р. . Стоимость дизайн-проекта: 66 000 р. . . Полную смету на ремонт и весь дизайн-проект можно посмотреть у нас на сайте.
Другие фотографии в проекте
Вопросы к фото 0
Задайте вопрос
Вам ответят эксперты. Пришлем уведомление, когда вам ответят




