
Архитекторы
5
·
10 отзывов
Реконструкция коттеджа
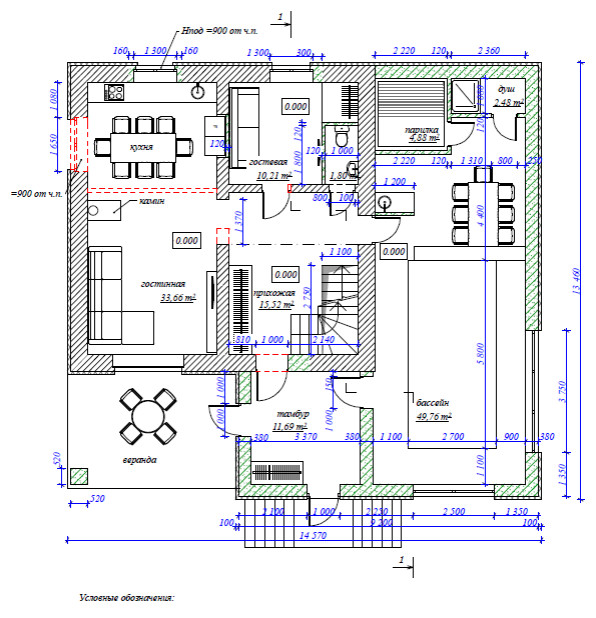
В идеале строить дом лучше на пустом участке, ну или снести домик развалюшку? и на его месте построить дом мечты. Однако в поселках, где есть дороги, магазины, школы и т.д. пустые участки только на окраинах. Хорошие места уже заняты . ⠀ . В данном случае участок с большими достоинствами (на берегу реки, правильной формы, практически без уклона) имел недостаток... дом. Его конечно можно было бы снести, но это было бы гораздо дороже чем перестроить. . ⠀ . С одной стороны для нас, как архитекторов, реконструкция сложнее новостроя, но с другой стороны включается азарт "А смогу?!" И мы как скульпторы превращаем кусок глины в... ну в общем вы поняли. . ⠀ . ?Потенциал есть в любом здании, не стоит пугаться, все можно исправить, главное знать как! . ⠀ . Первоначально дом, построенный из силикатного кирпича, представлял собой квадратный в плане объем, с пристроенным гаражом над которым была комната. . . Сначала мы оценили ситуацию, что можем "трогать", а что нет и приняли ряд решений: . -Стены гаража были всего 250 мм. С такими стенами только улицу обогревать! Решили их усилить и утеплить. Для этого усилили фундамент, обложили кирпичом и утеплили пенополистиролом. . - Крыша полностью не устраивала. Эстетически. Особенно скат над гаражом. Решили крышу полностью снести и сделать новую. Пришлось снести фронтоны и возвести новые, другой формы. . -Планировка. 1 этаж особо не менялся. Слева от входа расположилась кухня-гостиная, рядом с которой появилась терраса. А справа на месте гаража была сделана зона релакса: парилка, душевая, бассейн. . -Планировка 2го этажа. Так как в доме планировалось проживание 2х поколений, этаж разделили по функции. Левую часть отдали родителям, а правую детям. У них появилась своя гостиная, спальня, ванная и детская (над тамбуром). . -Также не забыли про гостей. Для них на обоих этажах запланировали по комнате. . -Кроме фронтонов снесли некоторые стены (ненесущие) и расширили пару окон, а несколько заложили. Без этого никакая реконструкция не обходится . . Данный дом был рассчитан на семью из 3х поколений: бабушка, супруги- хозяева и их дочь с мужем. Для бабушки спальню расположили на первом этаже, для хозяев и молодоженов на втором. Так как к "детям" часто приходят гости, то появилась идея не делать большую спальню, а выделить пространство на 2м этаже для второй гостиной. Также рядом с гостиной была возможность обустроить детскую для будущего ребенка. В гостиной предлагали сделать и зону кухни (на всякий случай), но "молодые" отказались в пользу кабинета . . Два больших окна, главные узнаваемые элементы на фасаде, как раз расположены в гостиной и детской. Чтобы предупредить восклицания "да вы что в детской такое огромное окно" типа опасно и т.д. - были предложения поменять местами спальню и детскую, но хозяева этой зоны обозначили достаточно жёстко, что пока ребенка нет, им комфортнее иметь спальню ближе к санузлу, а потом когда появится, "тогда и будем решать, может и переедем". Т.е. гостиная станет спальней, а спальня - детской.
Другие фотографии в проекте
Вопросы к фото 0
Задайте вопрос
Вам ответят эксперты. Пришлем уведомление, когда вам ответят




