
Архитекторы
0
Реконструкция индивидуального дома в Московской области
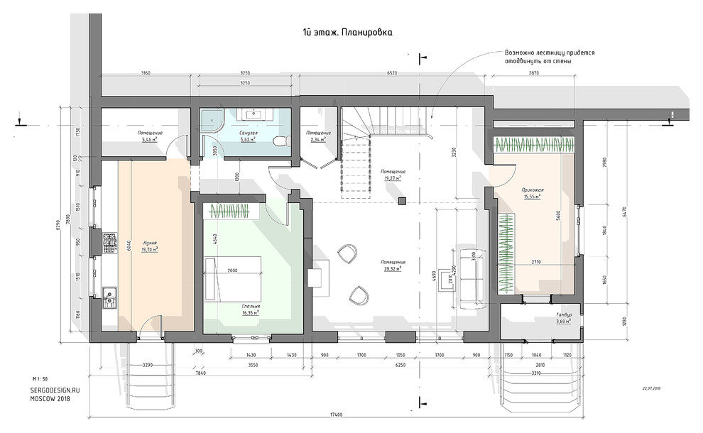
План 1го этажа. Архитектор Сергей Головин
Другие фотографии в проекте
Вопросы к фото 0
Задайте вопрос
Вам ответят эксперты. Пришлем уведомление, когда вам ответят

Архитекторы
0
План 1го этажа. Архитектор Сергей Головин
Другие фотографии в проекте
Вам ответят эксперты. Пришлем уведомление, когда вам ответят