
Архитекторы
5
·
10 отзывов
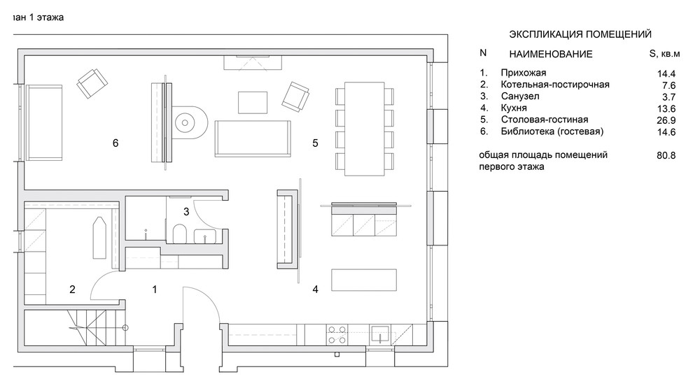
Реконструкция дома в Сходне
Первый этаж может трансформироваться в зависимости от текущих потребностей хозяев дома.
Другие фотографии в проекте
Вопросы к фото 0
Задайте вопрос
Вам ответят эксперты. Пришлем уведомление, когда вам ответят




