
Дизайнеры интерьера
5
·
10 отзывов
Реализованный объект, квартира 60 кв/м с панорамными окнами, Воздух
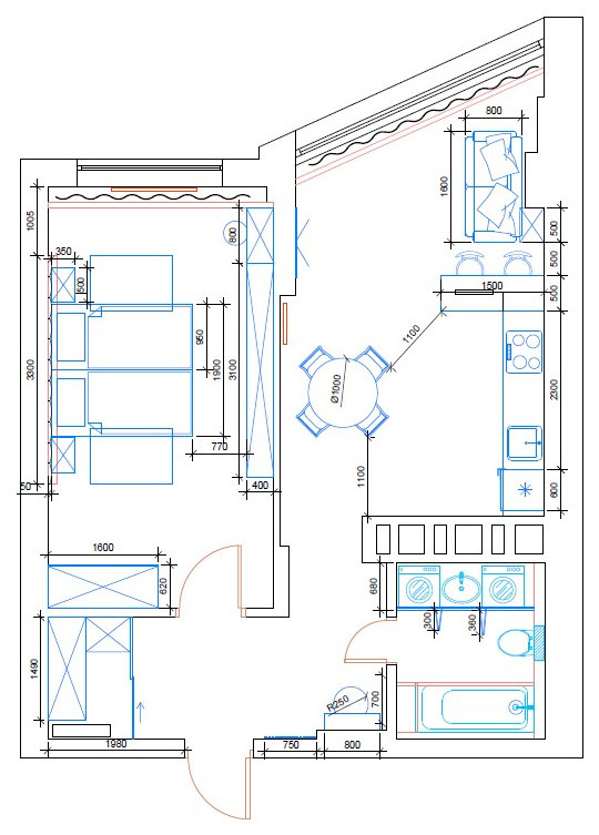
Квартира в элитном доме, в деловом центре города, также рядом много учебных заведений. Подготовлена под сдачу. . Название проекта следует из отличного вида на парковую зону. Несмотря на то, что дом расположен практически в центре города, вид из окна меняет это ощущение. . Заказчик в итоге хотел увидеть практичный, легко трансформирующийся интерьер, в нейтральной цветовой гамме. . Оформление стены за диваном продиктовано формой стены (наличие выступающей несущей колонны) и нежеланием ее выравнивать. В итоге получилась отличная видовая точка, которая хорошо просматривается и из прихожей, и со входа в кухню. . В спальне кровати гостиничного типа- легко сдвигаются и раздвигаются, отсюда и такое оформление изголовья.Стена за изголовьем неслучайно такой формы. Во-первых, выделяет спальную зону, во-вторых- под коробом смонтирована скрытая подсветка во всю длину, чтобы при разделении или соединении спальных мест свет был доступен в любой точке. Причем подсветка разделена пополам и включается каждая половина со своей стороны. . В интерьере каждого помещения продумано очень много сценариев освещения, в том числе декоративной подсветки. .
Другие фотографии в проекте
Вопросы к фото 0
Задайте вопрос
Вам ответят эксперты. Пришлем уведомление, когда вам ответят
Белый мрамор в интерьере, Брянск, Гостиная, Контемпорари, дизайн ванной, дизайн дома, дизайн интерьера, дизайн квартиры, дизайн квартиры под сдачу, дизайн кухни-гостиной, дизайн однушки, дизайн прихожей, дизайн спальни, кухня-гостиная, натуральные материалы в отделке, панорамные окна в интерьере, светодиодная подсветка в интерьере, стена под камень в интерьере
Похожие фотографии

Apartments Neva Towers 1
Пример оригинального дизайна: гостиная комната среднего размера в современном стиле с бежевыми стенами, светлым паркетным полом, бежевым полом, многоуровневым потолком, панелями на части стены и акцентной стеной
Вадим Мартынов Екатерина Гатилова

Частная резиденция DRR
Свежая идея для дизайна: идея дизайна в современном стиле - отличное фото интерьера
Portner Architects

Вавилова 4
Стильный дизайн: гостиная комната в стиле неоклассика (современная классика) - последний тренд
Ира Носова

FESTIVAL FLAT
Пример оригинального дизайна: открытая, объединенная гостиная комната среднего размера, в белых тонах с отделкой деревом в современном стиле с белыми стенами, паркетным полом среднего тона, мультимедийным центром и коричневым полом
Екатерина

Гостиная
Пример оригинального дизайна: гостиная комната в современном стиле с коричневым диваном, паркетным полом среднего тона и потолком из вагонки без камина
Александра Протасова

Квартира ул Тверская
На фото: гостиная комната в стиле неоклассика (современная классика) с белыми стенами и многоуровневым потолком с
Олег Михайлов архитектор-дизайнер

Пентхаус в Краснодаре
На фото: идея дизайна в современном стиле с
Денис Мурый

Квартира в Палевском жилмассиве
Идея дизайна: открытая, объединенная гостиная комната среднего размера в скандинавском стиле с белыми стенами, полом из винила, коричневым полом и кирпичными стенами без телевизора
Дмитрий Дубровский

Зал
Источник вдохновения для домашнего уюта: гостиная комната в современном стиле с бежевыми стенами, светлым паркетным полом и бежевым полом
Дмитрий Галаганов

Квартира в ЖК "Василеостровский квартал"
Пример оригинального дизайна: гостиная комната в современном стиле с паркетным полом среднего тона и коричневым полом
Екатерина Савенко

Дом, умный дом(фотографии спальни)
Источник вдохновения для домашнего уюта: идея дизайна в современном стиле
Архитектурная студия Астар проект

Гостиная
Свежая идея для дизайна: маленькая открытая, объединенная гостиная комната в современном стиле с серыми стенами и серым полом без телевизора для на участке и в саду - отличное фото интерьера
Ольга Васильева




