
Архитекторы
5
·
10 отзывов
Разноцветная квартира
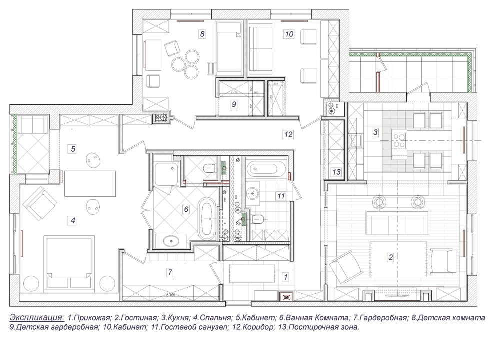
Квартира создавалась для людей разносторонних и решительных! Яркие цвета стали отправной точкой для начала проектирования. . Главное требование - "Чтобы не было скучно!" . Разнообразные приемы открыли поле для экспериментов.
Другие фотографии в проекте
Вопросы к фото 0
Задайте вопрос
Вам ответят эксперты. Пришлем уведомление, когда вам ответят




