logo
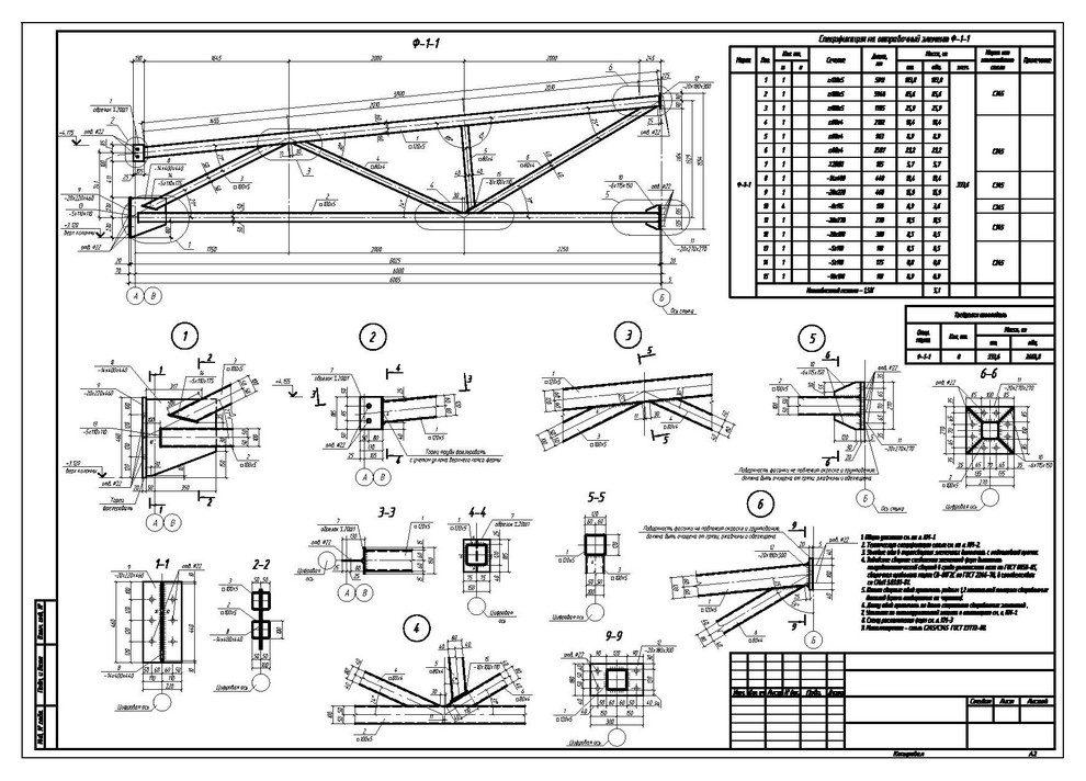
Расчет металлических ферм с опиранием на Ж/Б колонны

Другие фотографии в проекте Расчет металлических ферм с опиранием на Ж/Б колонны

Расчет металлических ферм с опиранием на Ж/Б колонны
Расчет металлических ферм с опиранием на Ж/Б колонны

Вопросы к фото 0

Задайте вопрос

Вам ответят эксперты. Пришлем уведомление, когда вам ответят