
Дизайнеры интерьера
5
·
2 отзыва
Рабочие чертежи к проекту "КАШТАН"
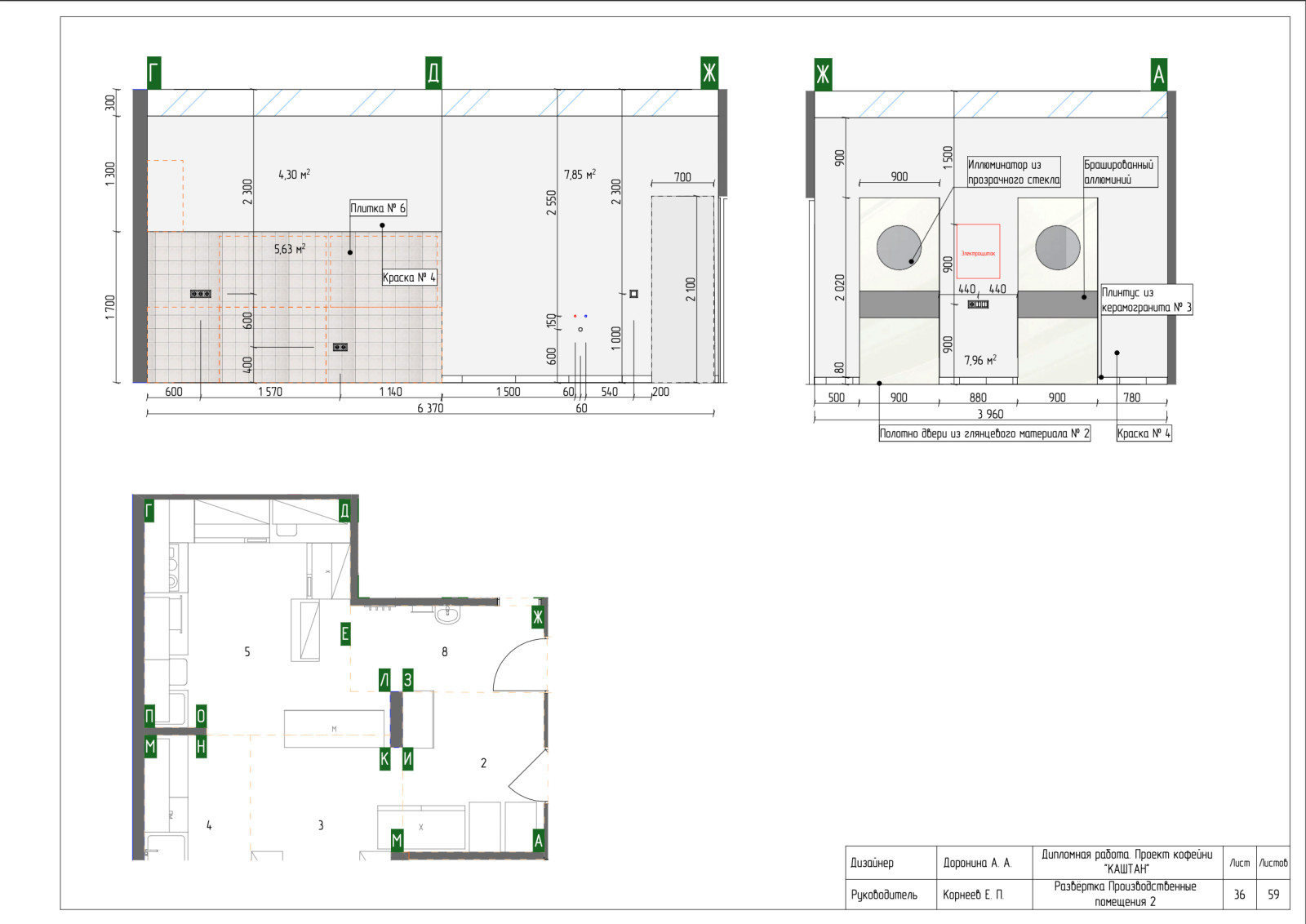
Развёртка Производственного помещения
Другие фотографии в проекте
Вопросы к фото 0
Задайте вопрос
Вам ответят эксперты. Пришлем уведомление, когда вам ответят

Дизайнеры интерьера
5
·
2 отзыва
Развёртка Производственного помещения
Другие фотографии в проекте
Вам ответят эксперты. Пришлем уведомление, когда вам ответят