Ещё 5 фото
Сначала новые
Вам ответят эксперты. Пришлем уведомление, когда вам ответят
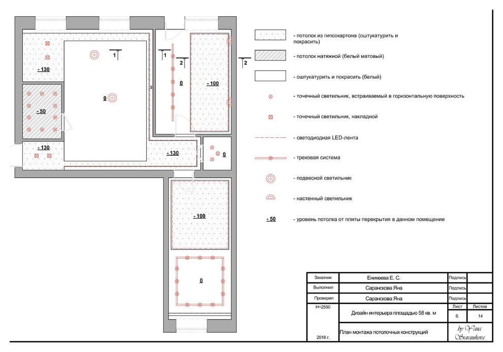
Кузнецк, Современный, дизайн интерьера, пакет проектной документации, рабочая документация, чертежи для дизайн-проекта интерьера, чертежные работы
yana saranskova
Архитекторы
0
отзывов
Рейтинг
Современный
Кузнецк
Яна Саранскова