Вопросы к фото 0

Задайте вопрос

Вам ответят эксперты. Пришлем уведомление, когда вам ответят

Москва, квартира, максимальный комплект, перепланировка, рабочая документация, рабочка, разработка чертежей, технический дизайн, чертежи

Алексей Лисовский

Алексей Лисовский

Архитекторы

Смотреть профиль

2

отзыва

5

Рейтинг

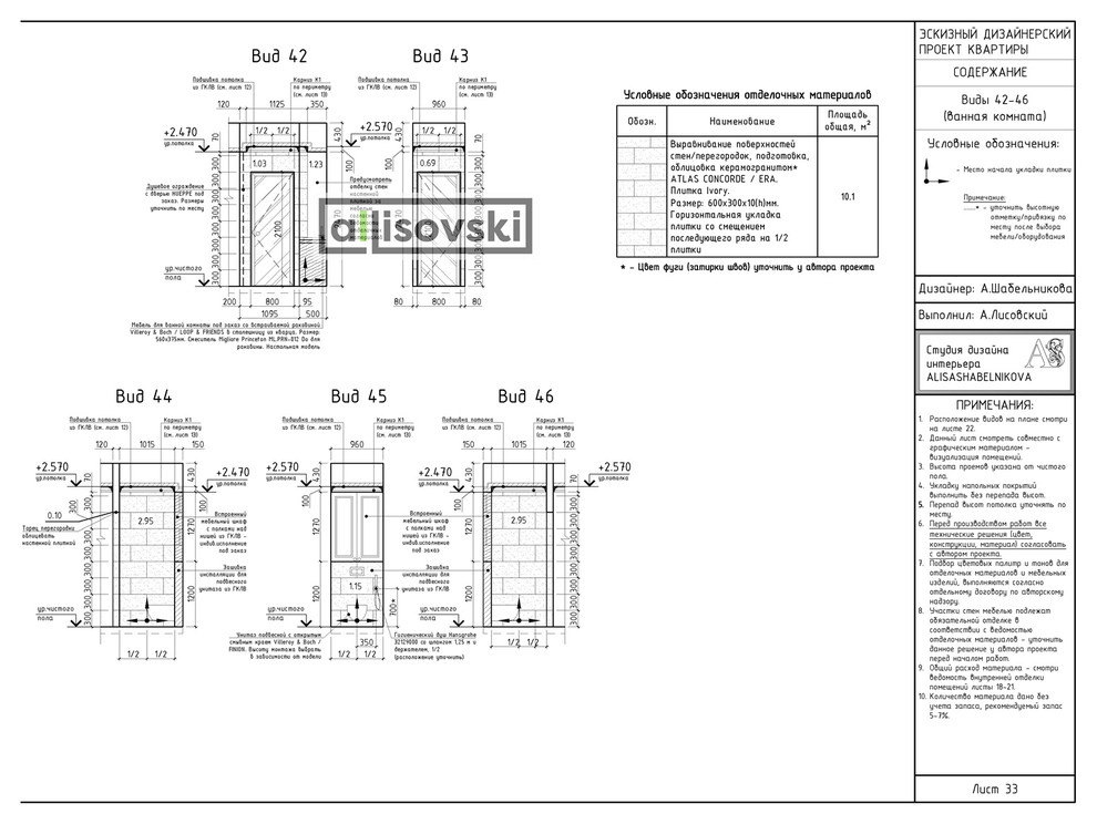
Рабочая документация (чертежи) для многокомнатной квартиры в Москве

Проект рабочей документации (чертежей) для дизайн интерьера многокомнатной квартиры, расположенной в Москвe. Общая площадь квартиры — 156.1м2. . . Стояла задача разработать комплект чертежей для реализации готового дизайн-проекта (3D) квартиры, разработанного дизайнером. Выполнена максимальная проработка чертежей. . . Просмотреть весь проект на сайте https://allisovski.com/malanya/ . . Проект выполнен для студии Алисы Шабельниковой http://intererdizain.ru

Вопросы к фото 0