
Sempre Arte студия дизайна интерьера
Дизайнеры интерьера
0
Пространство фантазий
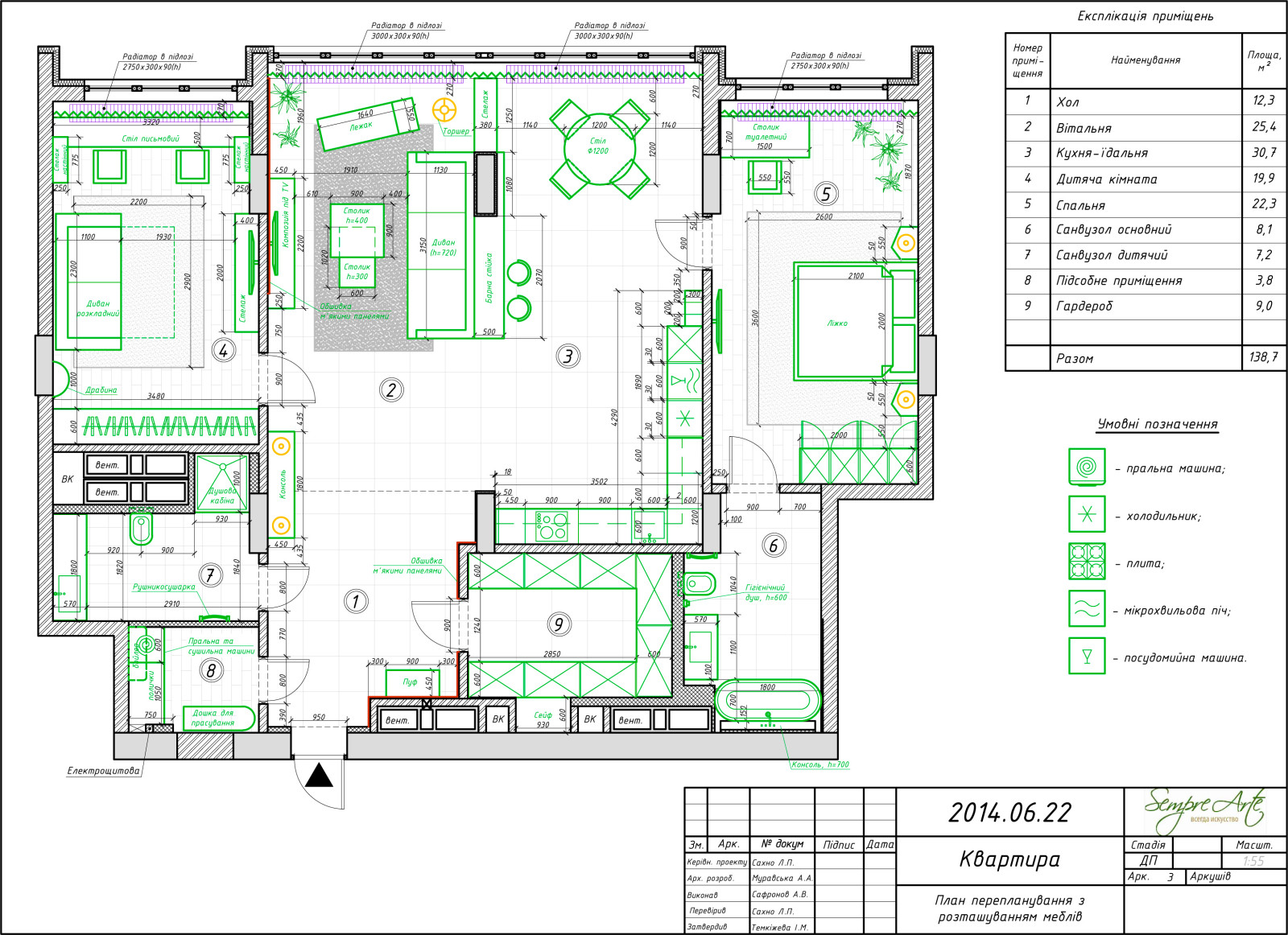
Пространство фантазий . Основной стилистический мотив этого проекта – современный модерн, с его прямыми линиями, строгими насыщенными цветами и ярко выраженными контрастами. Цветовую гамму составляют бело-бежевые тона, на фоне которых крупными акцентами вводятся терракотовый, темно-бордовый, черный и ультрамарин. Эта квартира не перегружена декором, и каждый предмет мебели находится на своем четко выверенном месте. Казалось бы, здесь нету места легкомысленности или ребячеству, а нет - маленькие забавные детали в оформлении, безусловно, не дадут заскучать. . Первое, что производит впечатление в этой квартире, - это освещенность пространства. Зоны прихожей, гостиной и кухни и столовой были объединены в единое целое, что позволило максимально использовать естественный солнечный свет, проникающий через панорамные окна. Избавившись от лишних перегородок, удалось так же визуально расширить каждую из функциональных зон. На входе гостей встречает просторная прихожая, справа от которой, за обшитой мягкими, бордовыми панелями, стене, спрятана гардеробная. . Прихожая визуально отделена от гостиной опуском потолка со световой панелью. Такое решение так же позволило скрыть охладительные системы квартиры. Мебель в гостиной лаконичная и компактная. Возможно, слишком простая. Однако при его создании проекта этой квартиры архитекторы не делали ставку на модные тенденции. Такой интерьер будет актуальным на протяжении десятилетий, и прекрасно вписавшейся в общую стилистику гостиной кресло Le Corbusier, дизайну которого уже больше полстолетия, еще одно тому доказательство. . Гостиная плавно перетекает в столовую. Барная стойка из необработанного массива дуба местных мастеро, установлена прямо за диваном, что создает дополнительные места для просмотра телевизора. Обеденный стол размещен более интимно – от гостиной его отделяет оформленный металлическими прутьями пилон и двухсторонний стеллаж. Строгость светлого стола и темных стульев простой формы оттеняют романтичные детали - легкий потолочный светильник и картина с мечтательным голубым небом. Белые матовые фасады кухни с акцентной отделкой светлой древесиной и серым кухонным фартуком визуально не перегружают общее пространство общественной зоны и продолжают светлое настроение квартиры. Матовая текстурная плитка с классическим крупным рисунком объединяет зоны прихожей, гостиной и кухни-столовой в единое целое. . Хозяйская спальня продолжает цветовую гамму гостиной: светло-бежевый и насыщенный бордовый создают спокойную атмосферу комнаты. Интимность этому пространству придают детали – асимметричный светильник, огромный подсвечник и туалетный стол на легкой опоре из веток. В детской комнате преобладают менее насыщенные оттенки – терракотовый уступает место приглушенно-розовому, а ультрамарин – голубому. Стены же - напротив, окрашены в более насыщенный бежевый цвет. Хотя общая стилистика детской и созвучна с интерьером всей квартиры, этой комнате безусловно присуща некая детская непосредственность. . Санузел выдержан в серой цветовой гамме с крупными белыми цветовыми пятнами. Подсветка за ванной и забавные маленькие стрекозы на стене создают атмосферу волшебства. . Оазис спокойствия – именно так можно охарактеризовать эту квартиру для молодой семьи в Киеве, ведь за порогом их дома время идет в своем особенном темпе. И вдруг, среди сумасшедшего ритма современной жизни, появляется минутка на приятные фантазии. .
Другие фотографии в проекте
Вопросы к фото 0
Задайте вопрос
Вам ответят эксперты. Пришлем уведомление, когда вам ответят
Похожие фотографии

Apartments Neva Towers 1
Пример оригинального дизайна: гостиная комната среднего размера в современном стиле с бежевыми стенами, светлым паркетным полом, бежевым полом, многоуровневым потолком, панелями на части стены и акцентной стеной
Вадим Мартынов Екатерина Гатилова

Частная резиденция DRR
Свежая идея для дизайна: идея дизайна в современном стиле - отличное фото интерьера
Portner Architects

Вавилова 4
Стильный дизайн: гостиная комната в стиле неоклассика (современная классика) - последний тренд
Ира Носова

FESTIVAL FLAT
Пример оригинального дизайна: открытая, объединенная гостиная комната среднего размера, в белых тонах с отделкой деревом в современном стиле с белыми стенами, паркетным полом среднего тона, мультимедийным центром и коричневым полом
Екатерина

Гостиная
Пример оригинального дизайна: гостиная комната в современном стиле с коричневым диваном, паркетным полом среднего тона и потолком из вагонки без камина
Александра Протасова

Квартира ул Тверская
На фото: гостиная комната в стиле неоклассика (современная классика) с белыми стенами и многоуровневым потолком с
Олег Михайлов архитектор-дизайнер

Пентхаус в Краснодаре
На фото: идея дизайна в современном стиле с
Денис Мурый

Квартира в Палевском жилмассиве
Идея дизайна: открытая, объединенная гостиная комната среднего размера в скандинавском стиле с белыми стенами, полом из винила, коричневым полом и кирпичными стенами без телевизора
Дмитрий Дубровский

Зал
Источник вдохновения для домашнего уюта: гостиная комната в современном стиле с бежевыми стенами, светлым паркетным полом и бежевым полом
Дмитрий Галаганов

Квартира в ЖК "Василеостровский квартал"
Пример оригинального дизайна: гостиная комната в современном стиле с паркетным полом среднего тона и коричневым полом
Екатерина Савенко

Дом, умный дом(фотографии спальни)
Источник вдохновения для домашнего уюта: идея дизайна в современном стиле
Архитектурная студия Астар проект

Гостиная
Свежая идея для дизайна: маленькая открытая, объединенная гостиная комната в современном стиле с серыми стенами и серым полом без телевизора для на участке и в саду - отличное фото интерьера
Ольга Васильева




