
Дизайнеры интерьера
0
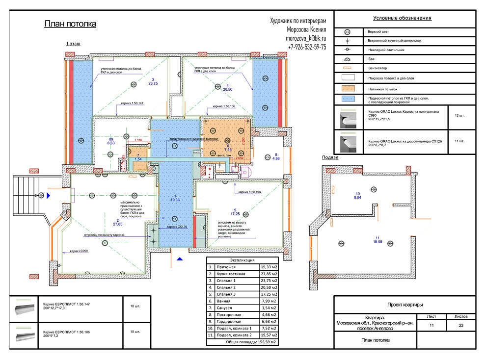
Проектная документация. Пример.
Здесь указываю тип покрытия потолка, его высоты, где, какой потолочный плинтус устанавливается и его количество. . . Всю информацию дублирую в ведомости отделочных материалов. . . Для заказчика и рабочих этот чертёж носит справочный характер. . . Автор: Ксения Морозова
Другие фотографии в проекте
Вопросы к фото 0
Задайте вопрос
Вам ответят эксперты. Пришлем уведомление, когда вам ответят




