
Дизайнеры интерьера
0
Проектная документация. Пример.
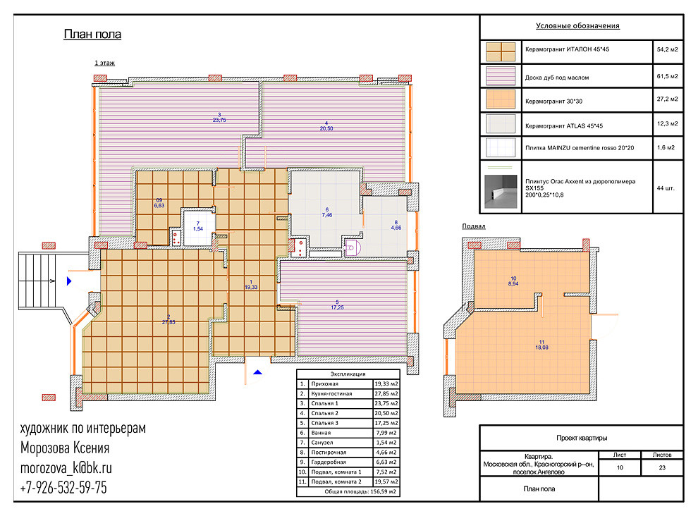
От привычек заказчика и бытовой практичности отталкиваюсь, когда предлагаю то или иное покрытие пола. . . На чертеже указываю тип покрытия пола, модель, требуемое количество, а также места установки плинтуса, размеры и модель. . . Дополнительная информация есть в ведомости отделочных материалов. Они ходят парой. . . План нужен рабочим для корректного выполнения работ. Заказчикам для понимания объема, какое и где используется покрытие. . . Автор: Ксения Морозова
Другие фотографии в проекте
Вопросы к фото 0
Задайте вопрос
Вам ответят эксперты. Пришлем уведомление, когда вам ответят




