
Дизайнеры интерьера
0
Проектная документация. Пример.
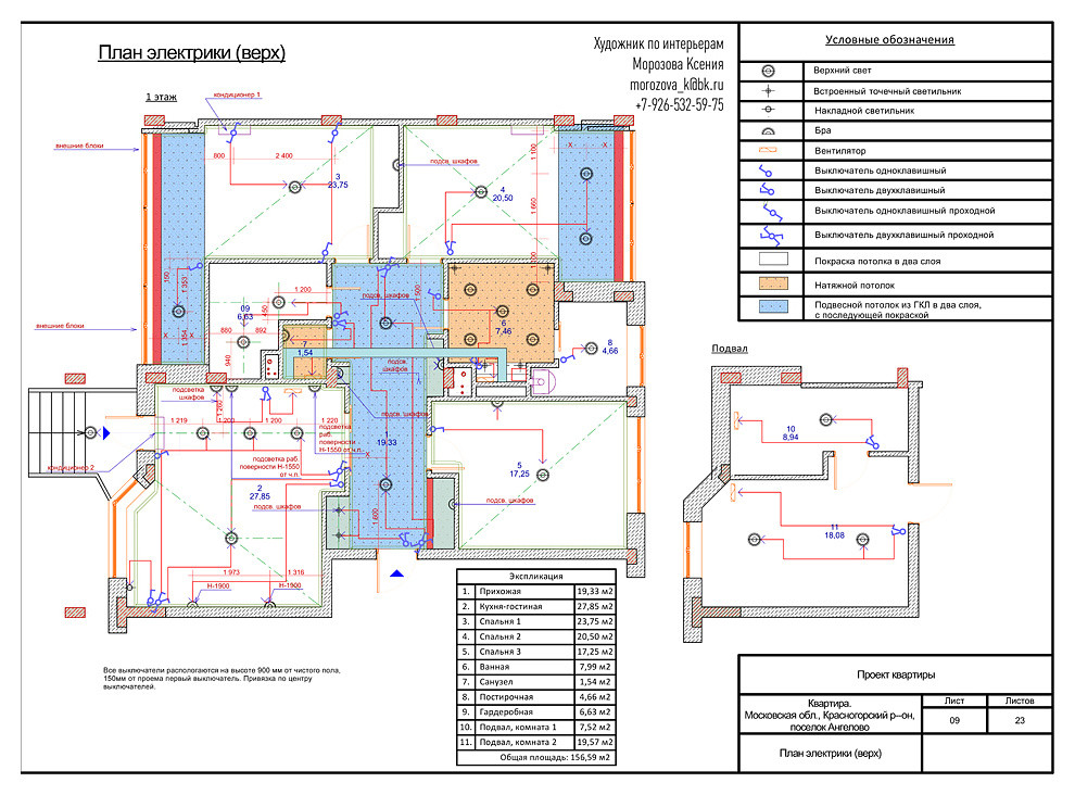
В общем план электрики (верх) демонстрирует освещение, его тип, точное место установки. Есть эта информация и по выключателям. . . К нему дополнительно прилагаю ведомость с рекомендуемыми светильниками и электрикой (выключатели и розетки). Такой комплект полезен заказчикам для самостоятельной комплектации проекта. . . План электрики (верх) нужен рабочим для понимания что и где устанавливать. . . Автор: Ксения Морозова
Другие фотографии в проекте
Вопросы к фото 0
Задайте вопрос
Вам ответят эксперты. Пришлем уведомление, когда вам ответят




