B3B47C79-BCBC-49EC-97D2-EA0732150A6C.jpg
Svetlana Strizhova

Svetlana Strizhova

Архитекторы

0

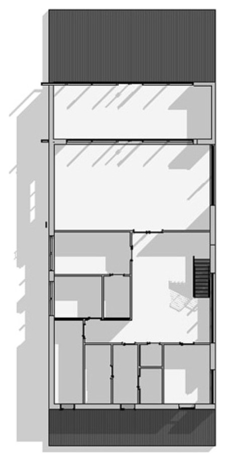
Проектирование Виллы в Финляндии с использованием BIM Revit . . Создание этой совре

Проектирование Виллы в Финляндии с использованием BIM Revit . . Создание этой современной виллы в Финляндии стало отличным примером применения технологий BIM (Building Information Modeling) на практике. . . С самого начала проектирования мы работали в Revit, что позволило: . • Создать детальную 3D-модель здания; . • Выявить потенциальные ошибки ещё на стадии проектирования; . • Оптимизировать взаимодействие между архитекторами, инженерами и строителями; . • Эффективно управлять изменениями и контролировать сроки. . . Благодаря BIM-модели клиент видел виллу ещё до начала строительства, а команда могла точно рассчитать материалы и объемы работ. . . Сегодня проект полностью воплощён в реальность — красивая современная вилла на берегу озера гармонично вписана в природный ландшафт. . . Технологии меняют архитектуру — мы создаём будущее уже сегодня. . . #BIM #Revit #Архитектура #Проектирование #ВиллаФинляндия #BIMвАрхитектуре #СовременнаяАрхитектура #Финляндия #Строительство #3DПроектирование #RevitПроекты .

Другие фотографии в проекте

Вопросы к фото 0

Задайте вопрос

Вам ответят эксперты. Пришлем уведомление, когда вам ответят