
Газон и полив
5
·
10 отзывов
Проектирование системы полива
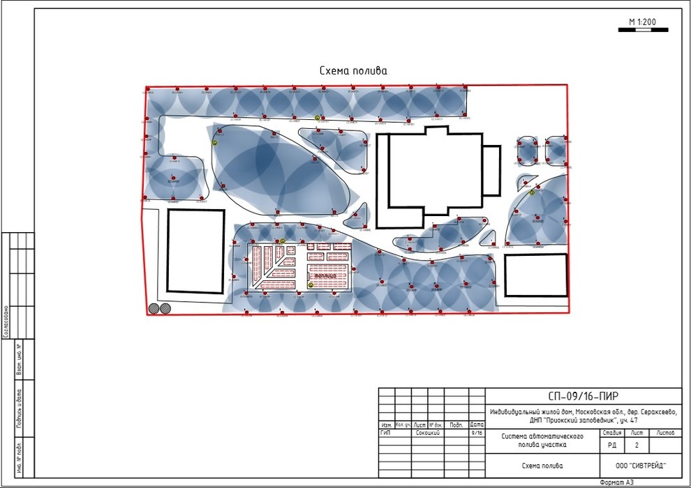
Предварительный план полива участка для составления первичной сметы. Растения еще не посажены, однако область перекрытия струи от форсунок на 99% орошает всю территорию. Заказчик пока планирует все застелить газоном, а по посадкам видно будет.
Другие фотографии в проекте
Вопросы к фото 0
Задайте вопрос
Вам ответят эксперты. Пришлем уведомление, когда вам ответят




