
Проектирование и строительство
5
·
10 отзывов
Проект Villa Adel
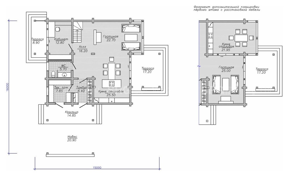
Площадь: 275 м2 . Комнат: 25 . Санузлов: 23 . Жилая площадь: 2187 м² . Площадь террас и балконовv89 м² . Технология: 2Клееный Брус . Категория: 2Big Family . Теплый контур: 28 590 000 руб . . Ярко выражена монолитность объёма, почти плоская крыша, высокие столбы-опоры, играют и конструктивную, и декоративную роль. Большая площадь остекления придаёт дому пространство и объём. . . Оригинальный подход к планировке выразился в отказе от традиционного размещения входной группы по центральной оси здания, а также в отсутствии второго света. Это позволило максимально использовать внутреннее пространство, вписав помещения и первого, и второго этажа в квадрат – самую упорядоченную и гармоничную геометрическую фигуру. .
Другие фотографии в проекте
Вопросы к фото 0
Задайте вопрос
Вам ответят эксперты. Пришлем уведомление, когда вам ответят




