
Ремонт и отделка квартир и домов
4.78
·
10 отзывов
Проект В ЖК Ривер парк 40 м2
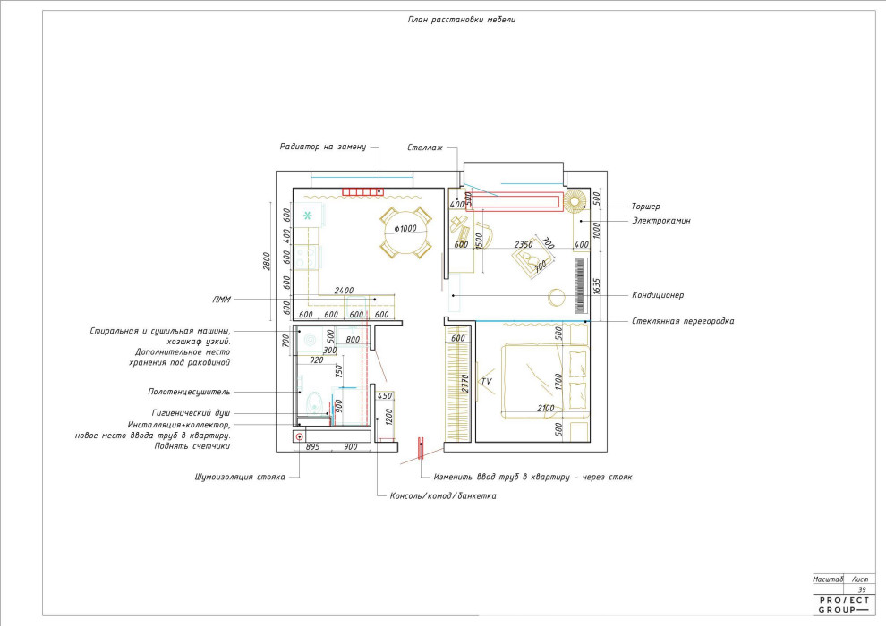
Планировочное решение. Получилось создать 4 полноценных функциональных зоны.
Другие фотографии в проекте
Вопросы к фото 0
Задайте вопрос
Вам ответят эксперты. Пришлем уведомление, когда вам ответят




