
Дизайнеры интерьера
5
·
18 отзывов
Проект трехкомнатной квартиры в Тропарево-Никулино
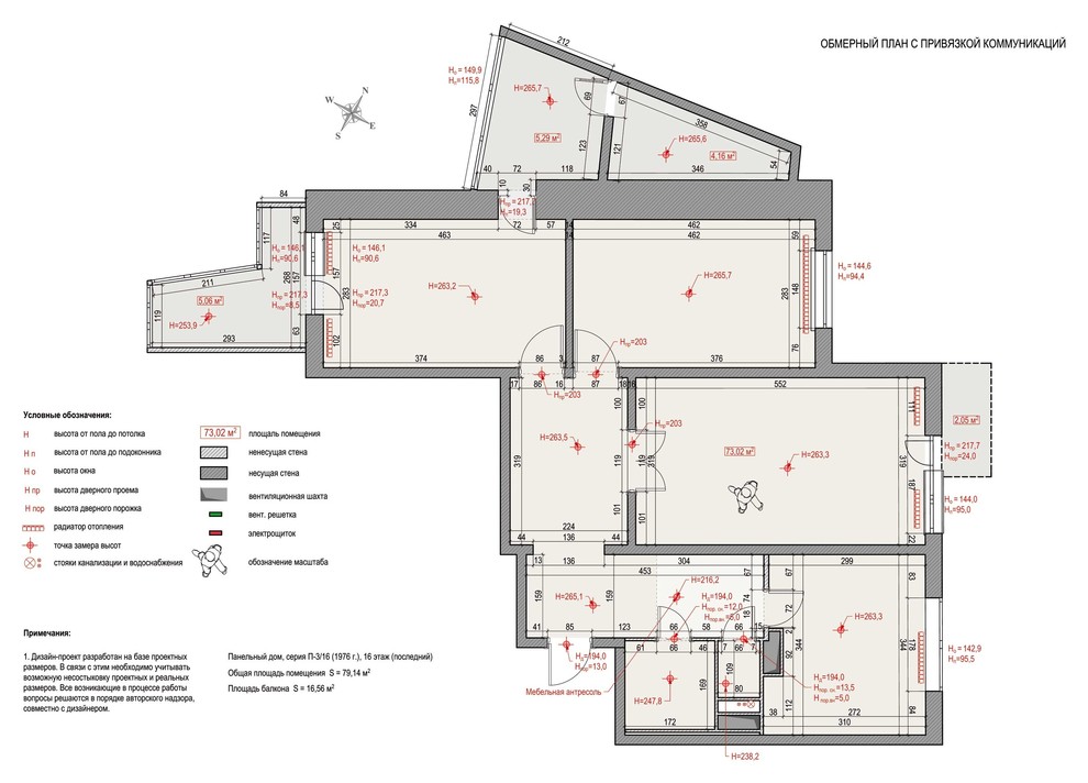
Все стены несущие, поэтому помещения остались в прежних границах. Однако последний этаж и постройка дома до 2007 года позволили согласовать дверной проем в стене между кухней и гостиной, благодаря чему ванная комната была расширена за счет коридора. Теперь здесь установлены ванна, раковина и унитаз, а на подиуме рядом с коробом вентиляции установлены стиральная и сушильная машины. Двери в ванную комнату и санузел для экономии полезного пространства сделаны складными.
Другие фотографии в проекте
Вопросы к фото 0
Задайте вопрос
Вам ответят эксперты. Пришлем уведомление, когда вам ответят




