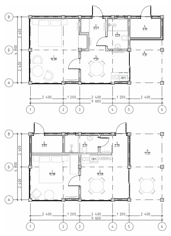
Проект типовых гостевых домов из фахверка

Другие фотографии в проекте Проект типовых гостевых домов из фахверка

Проект типовых гостевых домов из фахверка
Проект типовых гостевых домов из фахверка

Вопросы к фото 0

Задайте вопрос

Вам ответят эксперты. Пришлем уведомление, когда вам ответят

Архитектура, архитекториркутск, визуализация, гостевойдом, домотдыха, проект, фахверк