logo
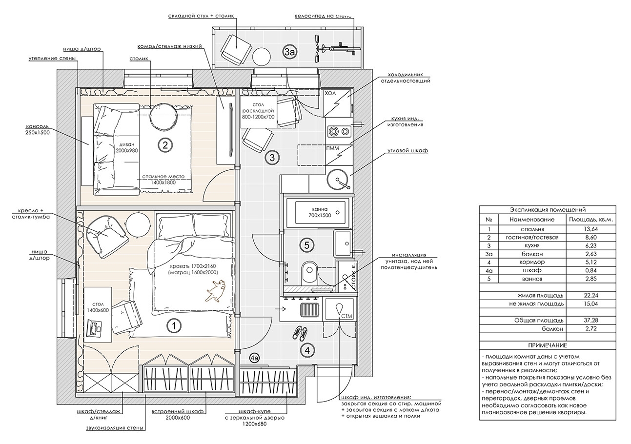
Проект: Тимирязевская ул., 40 кв.м.

Другие фотографии в проекте Проект: Тимирязевская ул., 40 кв.м.

Вопросы к фото 0

Задайте вопрос

Вам ответят эксперты. Пришлем уведомление, когда вам ответят

Москва, Эклектика, дизайн интерьера эконом, квартира для девушки, маленькая квартира, однокомнатная квартира, фьюжн

Екатерина Федяева

Екатерина Федяева

Дизайнеры интерьера

Смотреть профиль

22

отзыва

5

Рейтинг

Проект: Тимирязевская ул., 40 кв.м.

Небольшая двухкомнатная квартира для чувственной девушки и хвостатого любимца. Светлые тона и яркие акценты, немного женственного будуарного настроения и флирта. Каждая комната как мини шкатулка, квартира - эмоция, квартира - настроение.

Вопросы к фото 0