
Архитекторы
4.92
·
10 отзывов
Другие фотографии в проекте
Вопросы к фото 2
Лена Гордина
10 л.
Спасибо, Нина! На английском надписи, потому что я эту типологию разрабатывала для большого проекта поселка, которым занималась крупная американская компания здесь в Москве для российского девелопера.
Nina Pavlova
10 л.
Елена, у вас в названии профиля опечатка закралась. Только увидела. "дизайнерОское бюро". Ну, если только это вы не специально так написали. )))
Лена Гордина
10 л.
Здорово! Спасибо что нашли опечатку, Нина! Вы меня вдохновили, сейчас повешу еще планировки. А как Вам планировка квартиры в "ЖК Воробьевы Горы2" с криволинейным стенам ? Надо Фефеловой показать.)))) Это моя любимая.)
Nina Pavlova
10 л.
Я обратила на неё внимание. Круто! Вы заведите тему и расскажите о ней подробно. Объясните, что криволинейность имеет право на жизнь, если она грамотна.
Лена Гордина
10 л.
Я пока не очень умею пользоваться ресурсом. Собираюсь плотно заняться оформлением. Буду советоваться.. Спасибо, Нина!
Nina Pavlova
10 л.
Хорошая планировка!
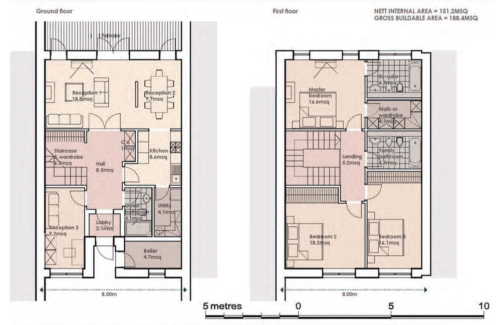
Елена, планировки мне понравились. Чисто американский подход. Когда я вернулась оттуда со стажировки всё пыталась предлагать подобные частным застройщикам. Но, я не архитектор. А дизайнера не принято слушать на начальном этапе строительства. Его обычно приглашают исправлять уже допущенные ошибки. Елена, а почему у вас подписи по-английски?
Nina Pavlova
10 л.
Елена, у вас в названии профиля опечатка закралась. Только увидела. "дизайнерОское бюро". Ну, если только это вы не специально так написали. )))
Nina Pavlova
10 л.
Я обратила на неё внимание. Круто! Вы заведите тему и расскажите о ней подробно. Объясните, что криволинейность имеет право на жизнь, если она грамотна.
Задайте вопрос
Вам ответят эксперты. Пришлем уведомление, когда вам ответят





Nina Pavlova
10 л.
Хорошая планировка!