
Архитекторы
5
·
10 отзывов
Проект сауны бани 6 на 6 метров из бревна
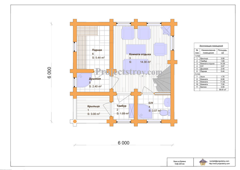
projectstroy . The project log sauna from a log. . . Двухэтажная баня из бревна 6 на 6 метров. . Проект сруба бани из оцилиндрованного бревна 220 мм с тремя комнатами на втором этаже. . . Экспликация бани: . - крыльцо; . - тамбур; . - санузел+бойлерная; . - небольшая душевая; . - комната отдыха; . - парная 5 кв. м; . - три комнаты на втором этаже; . - балкон на две комната. . . Показатели для предварительного сметного расчета строительства: . . общая площадь - 59.8 кв. м . объем ОЦБ бревна 220 мм (паз 120 мм) заг. 6 м ~ 41 куб. м (отход~2%) . балки - 100х200 мм . стропила - 50х200 мм . площадь кровли и периметр - 75 кв. м - 50 м . угол кровли - 39 гр. . пог. м фундамента дома - 38 м . высота 1-го этажа - 2.7 м . высота подъема стен 2-го этажа - 1.47 м. . . На заметку! . Расстояние бани от границ соседнего участка минимум 1 м от выступающей части строения бани более 500 мм (включая выступ кровли). . . Точная смета на строительство силовой части сруба бани зависит от типа фундамента, материала кровли, степени изменения проекта, доставки материала до участка, степени обустройства участка и скрытых пожеланий индивидуальности заказчика). . . http://projectstroy.com/project_a_15.html .
Другие фотографии в проекте
Вопросы к фото 0
Задайте вопрос
Вам ответят эксперты. Пришлем уведомление, когда вам ответят



