Вам ответят эксперты. Пришлем уведомление, когда вам ответят
Контемпорари, строительство загородных домов под ключ
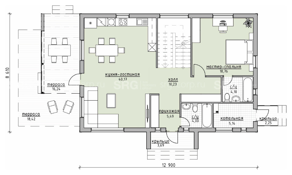
Площадь: 172 м2 . Комнат: 4 . Санузлов: 2 . Жилая площадь: 132 м² . Площадь террас и балконов: 41 м² . Технология: Финский Каркас . Категория: Standart . Теплый контур: 3 490 000 руб . Инженерные сети: 1 056 000 руб . Отделка: 1 518 000 руб . . Современный дом с мансардным этажом. . . К вашему вниманию предлагается проект дома с современной архитектурой, большой площадью остекления и мансардным этажом. В доме просторная кухня-гостинная 40м2, мастер спальня на первом этаже и две комнаты на втором. Три санузла, терраса. Опционально вы можете добавить мансардные окна.